arrow-circle-down arrow-circle-left arrow-circle-up arrow-down arrow-left arrow-line-right arrow-right arrow-up ballon close facebook filter glass lock menu phone play point q question search target twitter
X

Una nave que deja de ser fondo para volverse escena: casa y calle se mezclan, el espacio se apropia y muta, el contexto se activa y el volumen vacío ensaya nuevas formas de vida urbana

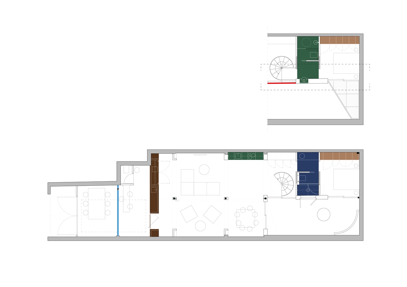
Otra nave industrial de Carabanchel rehabilitada. Del lavado de coches a lo que puede ser un nuevo arquetipo arquitectónico. Espacios que hibridan usos domésticos con usos vinculados a la calle, de oficina o taller artístico, de acceso público a veces, de pequeña cafetería quizá, de exposición o eventos. Una casa como lugar ya no sólo donde encontrar privacidad e intimidad. Una casa con la que abrirse a la ciudad, un lugar donde el habitante construye su identidad social. Transformaciones que no sólo buscan adaptar un espacio en desuso a las necesidades modernas. Utilizar este proyecto como caso de análisis de un contexto, no sólo físico, también mental, económico, natural, urbano, arquitectónico, social y cultural. Extender el argumento de la tipología hacia el contexto social consiste en ser conscientes de lo que está ocurriendo. Del tejido productivo más próximo al objeto encontrado, de la asimilación de un contexto a la incorporación de nuevos contextos. Contexto como recurso, como idea ampliada, como oportunidad, como cambio.

 

En la casa fenomenológica, la apropiación del espacio es el impulso que determina el pulso arrítmico del loft. El loft neoyorquino de los años sesenta y setenta, puro espacio y aire, isotropía y metros cúbicos sin dotaciones específicas. El espacio continuo del loft interrumpido por objetos no encontrados: muros, puertas, muebles, volúmenes, balcones, barandillas, contraventanas, pilares, vigas. Objetos de una incipiente colonización del espacio.  Apropiación cambiante e incompleta, improvisada e impredecible, experimental y lúdica. La memoria del loft traído al aparente desorden visual de unos objetos de distinta naturaleza material y cromática, camuflan el orden de la vida diaria gobernada por el funcionalismo. Color incorporado al material, adoptando su forma.

 

De la ventana a la calle que busca iluminación y ventilación pero que paradójicamente construye con sus rejas y persianas una distancia con la vida de la ciudad. De esa ventana a una fachada efímera. Una fachada definida por un cerramiento metálico como los de esa misma calle, pero que a veces se abre y se pliega sobre sí mismo. Una fachada efímera que ofrece una vista del exterior y admite la mirada hacia el interior. Abre su gran hueco hacia la ciudad o mantiene su parte inferior cerrada para dejar sólo la luz entrar por su parte superior. Después, otro cerramiento, de cristal, distintas capas de la dermis con la que esta tipología regula su apertura al mundo. 

 

De la fachada efímera a la fachada sólida en el interior, la del nuevo patio. Una fachada clásica, con sus ventanas y sus contraventanas, que se abren y se cierran para regular la intimidad de los espacios más profundos, baños y otras estancias menores.

 

Entre medias, la celebración de un problema. Una serie de falsos pórticos ocultan instalaciones e irregularidades constructivas para devolver cierta isotropía al espacio, espacio fluido pero demarcado, un espacio o cinco espacios, límites ambiguos, espacios indeterminados a la espera de ser colonizados.

 

El arquetipo como fórmula para pensar en otras formas de vida contemporánea, otras formas de habitar la ciudad, otras formas de construir lo urbano y su vida social. Formas de apropiación de grandes cantidades de volumen, metros cúbicos sin cualidades propias, volumen superficial.

 

Fotografías Maru Serrano

Documentación gráfica

Participaciones en arquia / próxima

No se han encontrado participaciones