arrow-circle-down arrow-circle-left arrow-circle-up arrow-down arrow-left arrow-line-right arrow-right arrow-up ballon close facebook filter glass lock menu phone play point q question search target twitter
X
  • Dantzaleku


  • Dantzaleku


  • Dantzaleku


  • Dantzaleku


  • Dantzaleku


  • Dantzaleku


  • Dantzaleku


  • Dantzaleku


  • Dantzaleku


  • Dantzaleku


  • Dantzaleku


  • Dantzaleku


  • Dantzaleku


  • Dantzaleku


  • Dantzaleku


  • Dantzaleku


  • Dantzaleku


  • Dantzaleku


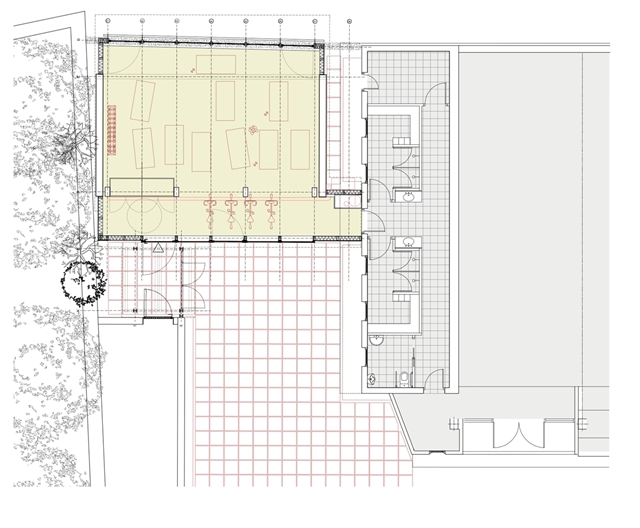
Garai Dantzaleku es la rehabilitación de un pequeño pabellón para danza y gimnasia en el municipio de Garai, Bizkaia. Con una superficie inferior a 150 m², el proyecto se sitúa en un espacio residual entre el frontón existente, el bolatoki y el límite del bosque. La intervención no parte de la voluntad de introducir un nuevo objeto, sino de activar una situación ya existente, apenas reconocida como espacio público.

 

El proyecto se apoya en una operación inicial de colocación. No se eliminan las construcciones previas ni se reordena el conjunto desde cero. Se trabaja sobre lo que hay, limpiando, cosiendo y ajustando relaciones. El nuevo pabellón ocupa un “entre”, un espacio sin uso definido, y lo transforma en una plaza cubierta capaz de acoger actividades vinculadas al movimiento, el encuentro y el uso cotidiano.

 

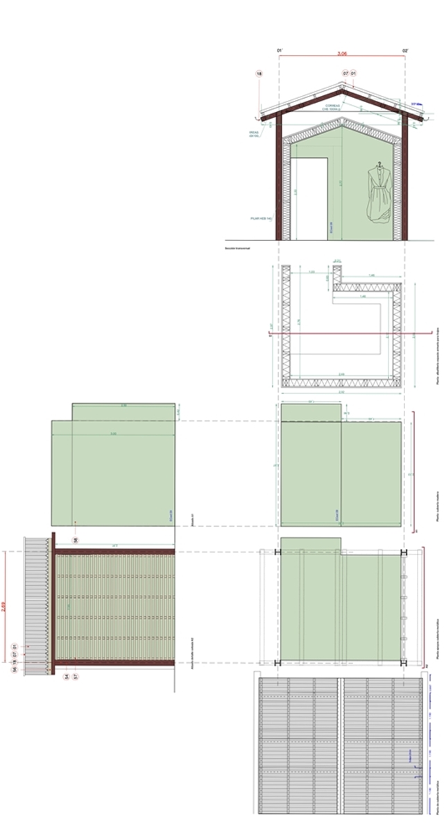
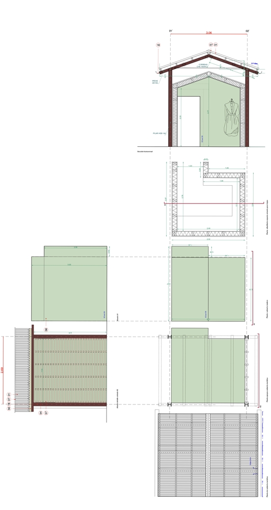
La edificación se apoya sobre un muro vegetalizado existente, al que se adosa sin modificar su condición. Esta decisión define tanto la implantación como la sección del edificio, que se concibe más como una pieza de conexión que como un volumen autónomo. El pabellón articula la relación entre las construcciones deportivas existentes y el paisaje natural, incorporando el bosque como telón de fondo constante.

 

El proyecto se compone de dos partes que funcionan conjuntamente. Una de ellas alberga los espacios de apoyo necesarios para la actividad —almacenaje, vestuario y equipamiento—, resolviéndose como un volumen más cerrado. La otra se construye a partir de una estructura abierta que hace explícita la relación entre carga, sección y forma. Esta segunda pieza traslada una sección estructural reconocible para convertirla en arquitectura útil, sin ocultar su lógica constructiva.

 

La estructura se mantiene visible y participa directamente en la configuración del espacio. Los elementos portantes no se recubren ni se disimulan, permitiendo que el sistema estructural forme parte de la experiencia interior. Esta condición resulta especialmente relevante en un edificio destinado a la práctica del movimiento, donde cuerpo y espacio se relacionan de manera directa.

 

En el interior, los límites entre dentro y fuera se mantienen deliberadamente ambiguos. Los acabados se utilizan de manera continua, sin establecer jerarquías claras entre paramentos. El suelo introduce una mayor definición mediante una secuencia de paneles de color que ordena el espacio y acompaña el uso, estableciendo un ritmo que responde a la actividad de danza y gimnasia.

 

La materialidad del proyecto responde a criterios de coherencia con el entorno y con la escala de la intervención. Se emplean sistemas constructivos sencillos y reconocibles, adecuados a un equipamiento público de pequeño tamaño. La cubierta se resuelve mediante teja cerámica curva, reforzando la integración del pabellón en el paisaje construido del municipio y estableciendo una continuidad visual con la arquitectura existente.

 

Garai Dantzaleku no pretende introducir un nuevo hito, sino ajustar una situación. La intervención transforma un espacio sin carácter en un lugar utilizable, sin alterar de forma sustancial el equilibrio previo. Un pabellón pequeño, preciso, que trabaja desde la proximidad y desde la relación directa con lo existente.

 

  • Información
  • Autoría

    Clasificación / Tipología

    Rehabilitación

    Ubicación

    Fronton Municipal Bolatoki 48007 | Garai | ESPAÑA

    Otra información

    Fecha Inicio: Setiembre 2024
    Fecha Terminación: Junio 2025
    Superficie construída: 150
    Coste/m2: 1980

    Agentes

    Promotor: Garaiko udala

Fotografias

Planimetría

Participaciones en arquia / próxima

No se han encontrado participaciones