arrow-circle-down arrow-circle-left arrow-circle-up arrow-down arrow-left arrow-line-right arrow-right arrow-up ballon close facebook filter glass lock menu phone play point q question search target twitter
X
  • oficinas mirasol

    BARCELONA
  • oficinas mirasol

    BARCELONA
  • oficinas mirasol

    BARCELONA
  • oficinas mirasol

    BARCELONA
  • oficinas mirasol

    BARCELONA

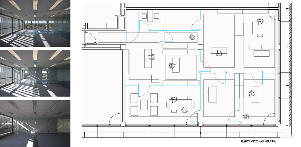
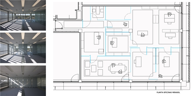
nuevas oficinas de dirección para una empresa de asisténcia psicomédica en mirasol, a las afueras de barcelona

se "compartimenta" una oficina, sin dividirla irreversiblemente, manteniendo las vistas privilegiadas y luz en todos los espacios. un sistema de cortinas enrollables, integradas en el falso techo, permiten cerrar o no según las necesidades de privacidad. un cubo de cristal translucido cierra un despacho de contabilidad, con archivos confidenciales, y convoca a su alrededor la distribución en planta de los diferentes despachos y salas. permite además una segunda circulación privada hasta la salida para los despachos de dirección. se mantiene el antiguo falso techo utilizándolo como módulo para configurar y ordenar la planta. unas alfombras de moqueta gris también enrollables permiten acceder fácilmente al suelo técnico  

  • Información
  • Autoría

    Clasificación / Tipología

    Interiorismo

    Ubicación

    Sant Cugat del Vallès
    BARCELONA | ESPAÑA

    Otra información

    Fecha Terminación: Enero 2012

    Agentes

    Contratista: Alupersol S.L.

    Estructuras: Marin-Cidoncha S.L.

    Fotografía: Víctor Illera Massana

    Instalaciones: Jesús Baena del Barrio

    Promotor: Grupo Inpross

Galería realización

0 comentarios


No hay comentarios ni valoraciones para este producto.
¡Sé el primero en comentar y valorar!