-
Becas y convocatorias
Martínez García-Ordóñez, Fernando (1922-2015)
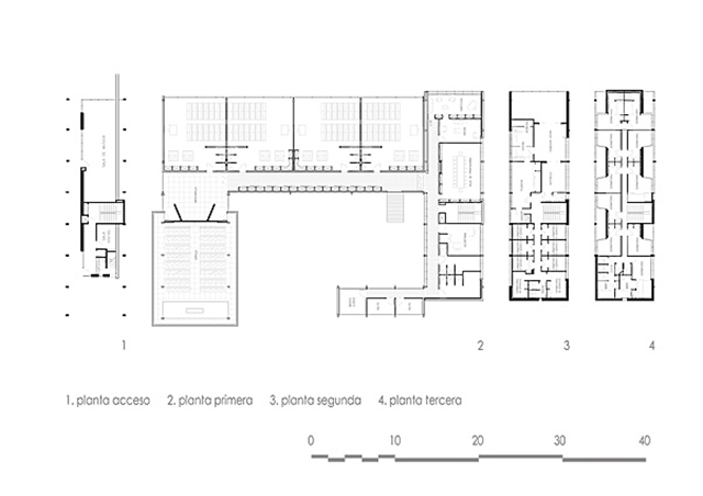
Colegio Guadalaviar
Colegio Guadalaviar
Año de inicio: 1957
Año finalización: 1960
Uso docente / centro de enseñanza primaria/instituto
Avenida Blasco Ibáñez, 56
46021 | Valencia
VALENCIA | ESPAÑA
No hay comentarios ni valoraciones para este producto.
¡Sé el primero en comentar y valorar!