arrow-circle-down arrow-circle-left arrow-circle-up arrow-down arrow-left arrow-line-right arrow-right arrow-up ballon close facebook filter glass lock menu phone play point q question search target twitter
X
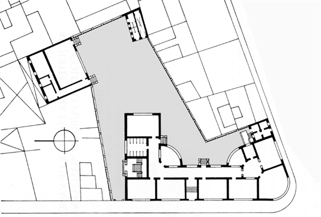
  • Escuelas Graduadas de la Calle Fructuoso García

    VALLADOLID. ESPAÑA
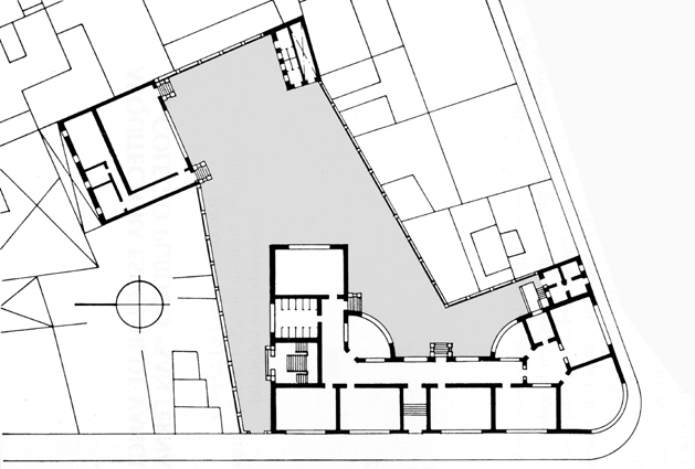
  • Escuelas Graduadas de la Calle Fructuoso García

    VALLADOLID. ESPAÑA
  • Escuelas Graduadas de la Calle Fructuoso García

    VALLADOLID. ESPAÑA
  • Escuelas Graduadas de la Calle Fructuoso García

    VALLADOLID. ESPAÑA
  • Información
  • Autoría

    Muro Antón, Joaquín

    Denominación original

    Escuelas Graduadas de la Calle Fructuoso García

    Denominación actual

    Colegio Público San Fernando

    Cronología

    Año de inicio: 1932 
    Año finalización: 1950 

    Uso original

    Uso docente / centro de enseñanza primaria/instituto

    Ubicación

    Calle Padre Claret, 11
    47004 | VALLADOLID
    VALLADOLID | ESPAÑA

Galería fotográfica

0 comentarios


No hay comentarios ni valoraciones para este producto.
¡Sé el primero en comentar y valorar!