arrow-circle-down arrow-circle-left arrow-circle-up arrow-down arrow-left arrow-line-right arrow-right arrow-up ballon close facebook filter glass lock menu phone play point q question search target twitter
X
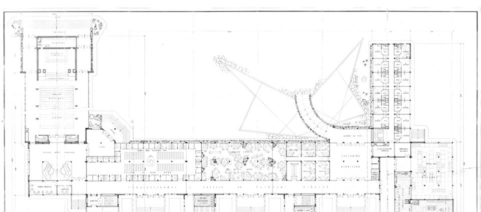
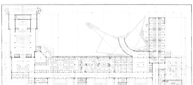
  • Colegio Internado de Nuestra Señora de la Consolación

    VALLADOLID. ESPAÑA
  • Colegio Internado de Nuestra Señora de la Consolación

    VALLADOLID. ESPAÑA
  • Colegio Internado de Nuestra Señora de la Consolación

    VALLADOLID. ESPAÑA
  • Colegio Internado de Nuestra Señora de la Consolación

    VALLADOLID. ESPAÑA
  • Información
  • Autoría

    Sánchez-Robles, Cecilio

    Denominación original

    Colegio Internado de Nuestra Señora de la Consolación

    Denominación actual

    Colegio San Agustín

    Cronología

    Año de inicio: 1959 
    Año finalización: 1961

    Uso original

    Uso docente / centro de enseñanza primaria/instituto

    Ubicación

    Avenida de Madrid, 38
    47008 | VALLADOLID
    VALLADOLID | ESPAÑA

Galería fotográfica

0 comentarios


No hay comentarios ni valoraciones para este producto.
¡Sé el primero en comentar y valorar!