arrow-circle-down arrow-circle-left arrow-circle-up arrow-down arrow-left arrow-line-right arrow-right arrow-up ballon close facebook filter glass lock menu phone play point q question search target twitter
X
  • Colegio de Misioneras del Santísimo Rosario

    MADRID. ESPAÑA
  • Colegio de Misioneras del Santísimo Rosario

    MADRID. ESPAÑA
  • Colegio de Misioneras del Santísimo Rosario

    MADRID. ESPAÑA
  • Colegio de Misioneras del Santísimo Rosario

    MADRID. ESPAÑA
  • Información
  • Autoría

    Sobrini, Carlos (1925-2020)
    García de Castro Márquez, Emilio (1932-2014)
    González Gómez, Gonzalo
    Coello de Portugal Acuña, Francisco (1926-2013)

    Denominación original

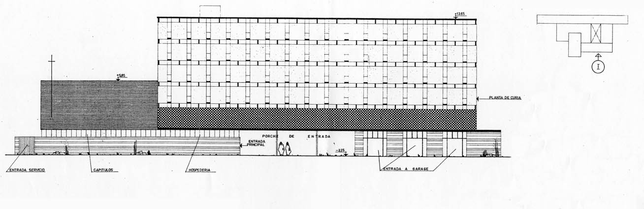
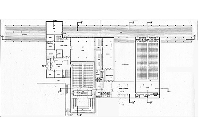
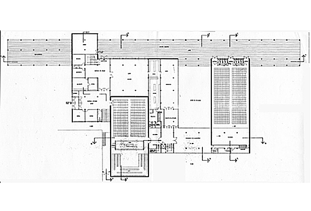
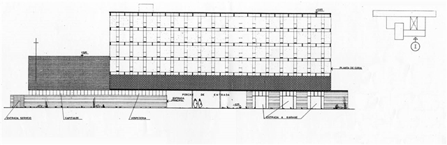
    Colegio de Misioneras del Santísimo Rosario

    Denominación actual

    Colegio Stella Maris

    Cronología

    Año de inicio: 1961 
    Año finalización: 1964 

    Uso original

    Uso docente / centro de enseñanza primaria/instituto

    Ubicación

    Calle Juan Pérez Zúñiga, 47
    28027 | MADRID
    MADRID | ESPAÑA

Galería fotográfica

0 comentarios


No hay comentarios ni valoraciones para este producto.
¡Sé el primero en comentar y valorar!