arrow-circle-down arrow-circle-left arrow-circle-up arrow-down arrow-left arrow-line-right arrow-right arrow-up ballon close facebook filter glass lock menu phone play point q question search target twitter
X
  • Editorial Gustavo Gili

    BARCELONA. ESPAÑA
  • Editorial Gustavo Gili

    BARCELONA. ESPAÑA
  • Editorial Gustavo Gili

    BARCELONA. ESPAÑA
  • Editorial Gustavo Gili

    BARCELONA. ESPAÑA

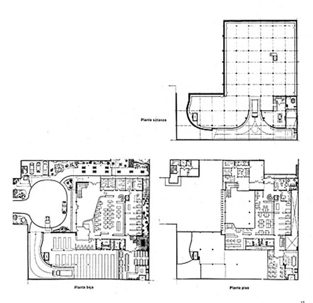
La editorial está situada en un patio interior de manzana del Eixample de Barcelona, dejando un gran espacio de acceso para que puedan girar los vehículos. Esta sería la idea principal del proyecto.

Actualmente se ha construido un edificio puente que cierra la manzana, pero al estar levantado sobre pilotis se puede seguir viendo el interior de manzana desde calle. La costumbre de ocupar los interiores de manzana con actividad productiva sigue la tradición industrial de mediados del XIX hasta finales del XX. Un modelo que ha generado un sistema urbano compacto, de usos mixtos, que combina vivienda, comercio e industria, e intensifica la actividad urbana.

El conjunto editorial está formada por tres edificios bajos, de planta baja más piso, cada uno de los cuales acoge una parte diferenciada del programa: dirección, oficinas y almacén. El lenguaje es muy radical y se lleva a cabo un tratamiento del color que acentúa las formas arquitectónicas, generando una atmósfera que nos transporta a los escenarios y localizaciones de las películas de Alfred Hitchcock: son los años de Con la muerte en los talones (1959) y Psicosis (1960).

Este edificio obtuvo el premio FAD en 1961. [Xavier Llobet Ribeiro]

  • Información
  • Autoría

    Bassó i Birulés, Francesc (1921-2017)
    Gili i Moros, Joaquim (1916-1984)

    Denominación original

    Editorial Gustavo Gili

    Denominación actual

    -

    Cronología

    Año de inicio: 1953
    Año finalización: 1961

    Uso original

    Uso administrativo / oficinas

    Ubicación

    Calle Rosselló, 87-89
    08029 | Barcelona
    BARCELONA | ESPAÑA

  • Premios y distinciones
  • PREMIOS FAD 1958 – 1980
  • Premios
  • Premio


    Premios FAD de Arquitectura e Interiorismo
    1961

Galería fotográfica

0 comentarios


No hay comentarios ni valoraciones para este producto.
¡Sé el primero en comentar y valorar!