arrow-circle-down arrow-circle-left arrow-circle-up arrow-down arrow-left arrow-line-right arrow-right arrow-up ballon close facebook filter glass lock menu phone play point q question search target twitter
X
  • Centro de la memoria


  • Centro de la memoria


  • Centro de la memoria


  • Centro de la memoria


  • Centro de la memoria


  • Centro de la memoria


  • Centro de la memoria


  • Centro de la memoria


  • Centro de la memoria


  • Centro de la memoria


  • Centro de la memoria


  • Centro de la memoria


  • Centro de la memoria


  • Centro de la memoria


  • Centro de la memoria


Un espacio diáfano que reinterpreta el cuidado y la investigación del deterioro cognitivo mediante una arquitectura flexible, modulada por la luz y el ritmo estructural.

Este proyecto aborda un tema que nos implica a todos, la tercera edad.
Un espacio diáfano cuyo estado previo era un bosque de pilares con cierto orden, fue el lugar elegido para incorporar en él un centro de día. Desde el comienzo, la premisa principal fue situar el modelo de cuidado como centro del proyecto. Un modelo de cuidado que está respaldado por el Centro de Investigación de Terapias Avanzadas, cuyo enfoque principal es la investigación del deterioro cognitivo, centrándose principalmente en el Alzheimer.

Este centro de día representa una pequeña parte de todo un proceso que va desde la plena salud mental hasta la completa dependencia. El proyecto busca acompañar e investigar a las personas en el último tramo de su vida, aportando conocimiento y recursos. El centro de día, dentro de todo ese proceso, se sitúa al comienzo, y buscaban crear un espacio donde pudieran desarrollar su método, su cuidado, y su investigación.

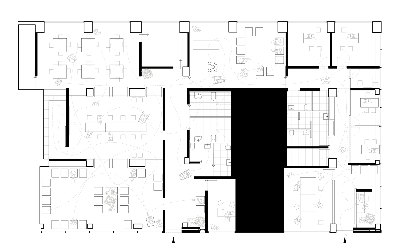
El proyecto se sitúa en San Sebastián, en una planta baja de unos 600m2 en el centro de la ciudad. Desde la calle principal a la que vuelca, se planten dos accesos: uno destinado a los usuarios del propio centro, y el otro para la zona de oficinas y personal. Una pequeña muestra del proyecto matriz, donde el cuidado y la investigación conviven. La parte izquierda de la planta incorpora el centro de día, con sus servicios pertinentes, y la parte derecha una serie de oficinas, salas de fisioterapia, de sesiones grupales, todas orientadas al mismo proyecto.

Era importante que los espacios fueran amplios, y fácilmente compartimentados. Una vez establecidos los servicios principales del centro y los recorridos, se buscó la manera de abordar el gran espacio de actividad y reposo que iba a ser protagonista. Apoyándonos en esas líneas de pilares existentes, un juego de puertas troqueladas permite compartimentar el espacio, y hacerlo amplio y fluido a la vez. Los agujeros de las puertas, además de iluminar el centro de la planta, dibuja una estela cambiante en función de la luz, que hace que el espacio se perciba algo diferente cada día, como ocurre cuando miramos a la naturaleza.


Era importante que los espacios fueran amplios, y fácilmente compartimentados. Una vez establecidos los servicios principales del centro y los recorridos, se buscó la manera de abordar el gran espacio de actividad y reposo que iba a ser protagonista. Apoyándonos en esas líneas de pilares existentes, un juego de puertas troqueladas permite compartimentar el espacio, y hacerlo amplio y fluido a la vez. Los agujeros de las puertas, además de iluminar el centro de la planta, dibuja una estela cambiante en función de la luz, que hace que el espacio se perciba algo diferente cada día, como ocurre cuando miramos a la naturaleza.

Fotos

Maqueta

Planimetría

Participaciones en arquia / próxima

No se han encontrado participaciones