-
Becas y convocatorias
Kitch·Room
67 viviendas de protección oficial en el Masnou
Implantación urbana
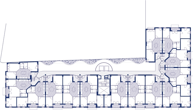
El proyecto está ubicado en la nueva Illa Centre del Masnou, donde anteriormente existía una fábrica textil, ahora hay un espacio de uso público que se abre a la ciudad. Las plantas bajas de los edificios de vivienda se convierten en espacios de uso comercial y equipamiento que llenan de vida esta nueva plaza.
La estrategia de implantación consiste en ocupar el perímetro de la parcela para abrir un gran patio longitudinal comunitario. Esta decisión responde a la complejidad topográfica del entorno, con 3 niveles que delimitan la parcela. Desde C/Italia se accede en el patio interior a través de una rampa que sitúa la cota de las viviendas 80cm por encima de la calle. Éste se conecta verticalmente con la planta baja a través del núcleo de accesos. Finalmente, un porche en fachada gira en la esquina, relacionando la plaza con el nivel inferior de C/Domènech i Farré, ampliando la rampa preexistente.
Conscientes de que el edificio construye la fachada más larga de la mencionada plaza, se trabaja una composición fragmentada mediante el tratamiento diferenciado de los balcones. Dos franjas verticales de balcones abiertos disgregan la homogeneidad de los huecos, consiguiendo una imagen más porosa. En planta baja, el ritmo horizontal del porche da continuidad a las conexiones urbanas entre cotas.
El patio configura un espacio de ocio y cuidados comunitario. Una única pieza lo vertebra y proporciona tanto jardineras como bancos para el descanso. Las relaciones vecinales también se fomentan con pasarelas exteriores que conectan las viviendas y culminan en la cubierta con vistas al mar, un espacio diseñado para su uso y disfrute. Aquí, como en medianeras y patio, se coloca vegetación que ayuda a mitigar el efecto isla de calor y propiciar un microclima fresco.
La cocina, el corazón de la casa
En las viviendas que componen el conjunto, se propone una tipología habitacional innovadora. El espacio de cocina conquista el corazón de la casa y se manifiesta como la pieza más social, ganando tamaño e importancia comparado con configuraciones clásicas. La disposición diagonal de los dormitorios les aporta independencia y rompe con los esquemas tradicionales de zona de día y zona de noche. Esta autonomía alcanza su clímax ya que las habitaciones disponen de acceso directo desde al espacio central mediante una gran abertura de doble puerta, favoreciendo la flexibilidad de uso. Cada vivienda disfruta de dos espacios exteriores. La cancela de acceso en pasarela, en contacto con el patio interior, proporciona intimidad y posibilita la ventilación sin riesgo de intrusismo. También ofrece un espacio de tender ventilado y protegido de las vistas. Por otro lado, el balcón en fachada volcado a la plaza.
A partir de la tipología de dos dormitorios, nacen variantes que resuelven la morfología del edificio: esquina, transición entre tipos y encuentro con el núcleo. La condición que prevalece en todas es el punto innovador y estructurante del proyecto, una tipología que convierte la cocina en la nueva centralidad doméstica.
Estrategia energética
La estrategia energética prioriza sistemas pasivos que reducen la demanda. El patio interior garantiza la ventilación cruzada natural, gracias al enfrentamiento de fachadas en condiciones climáticas opuestas. La cocina se ilumina y ventila a través de ellas, manteniendo el confort climático durante todo el año. Se favorece la captación solar a través de ventanales en fachadas sur y oeste, protegidos en verano mediante aleros y toldos móviles. La captación se aprovecha al máximo gracias a la gran inercia térmica de la estructura de hormigón sin falsos techos. Más allá de priorizar los sistemas pasivos, se propone un sistema de climatización muy optimizado para la demanda energética restante: un sistema de aerotermia centralizado y reforzado con placas fotovoltaicas. Finalmente se propone el uso de materiales reciclados y reciclables (paneles de tiza, aluminio...).
Edificación
Carrer Itàlia | Masnou | ESPAÑA
Fecha Inicio: Enero 2019
Fecha Terminación: Diciembre 2025
Superficie construída: 8.000
Coste/m2: 5.500.000
Colaboradores:
Consultor ambiental: Societat Orgànica
Arquitectura: Xesús Fajer
Arquitectura: Franc Llonch
Estructuras:
Bernuz Fernandez Arquitectes SLP
Fotografía:
José Hevia
Instalaciones:
Eletresjota Tècnics Associats SLP
No se han encontrado participaciones