arrow-circle-down arrow-circle-left arrow-circle-up arrow-down arrow-left arrow-line-right arrow-right arrow-up ballon close facebook filter glass lock menu phone play point q question search target twitter
X


Los nuevos fragmentos, que se diferencian de los anteriores, envejecerán junto a lo viejo y la pátina del tiempo los unirá contribuyendo a una entidad arquitectónica.

Se trata de la rehabilitación y ampliación del caserío Telletxeko Borda (1740) situado en Bera-Navarra. El caserío (baserri en euskera) era una casa de trabajo que constituía una unidad económica autosuficiente dedicada a labores agrícolas y ganaderas. El edificio aislado, rodeado por sus tierras, parece salir del propio terreno para alzarse vigilante sobre éstas. En un momento en el que la actividad del caserío no es el pilar de la economía familiar, la rehabilitación debe responder a necesidades actuales. Las nuevas capas deberán seguir conformando la unidad, autonomía y condición vigilante del objeto.

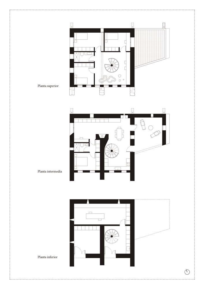
El caserío Telletxeko Borda está diagonalmente orientado en planta respecto al eje Norte-Sur: se trata de una orientación utilizada por los antiguos caseríos como primer acto primigenio de eficiencia energética. Se sitúa en la parte alta de las tierras que le pertenecen, adaptado a la topografía inclinada para generar accesos desde el exterior a diferentes niveles del edificio. En planta baja se encontraba la cuadra, que transmitía el calor de los animales a la planta intermedia, donde se situaba la vivienda con la cocina como estancia principal. El desván, con muy poca altura, se empleaba para almacenar grano y como secadero de productos hortícolas.

El perímetro del edificio, con unas dimensiones de 8x8,5m en planta, está ejecutado mediante muros de mampostería, excepto la fachada sur, que estaba construída a base de entramado de madera y argamasa para que tuviera menor inercia térmica.

La vida de los baserritarras (gente que vivía en el caserío) no tenía nada de romántico. Su objetivo no era el de construir una imagen romántica del caserío ni del paisaje, puesto que se trataba de una actividad económica. A lo largo de los años, los propios baserritarras adaptaban, modificaban y añadían nuevas partes a sus caseríos según necesidades del momento. La intervención se plantea con el mismo pragmatismo de nuestros antepasados. Añade una capa más en la adaptabilidad constante de este edificio pero entendiendo que la suma de las partes debe seguir contribuyendo a la unidad.

La planta baja, donde antiguamente se encontraba la cuadra, alberga ahora la despensa, conectando la huerta del sur con la cocina mediante una escalera circular. En la planta intermedia se encuentran el dormitorio principal y la zona de día, con acceso a nivel desde el este. El muro de mampostería central preexistente se utiliza como apoyo estructural de los nuevos forjados de losa de hormigón, que permiten arriostrar los desplomados muros perimetrales. En torno al muro central se localizan la cocina, la escalera, la chimenea y el almacenaje. Esta planta continua recibe luz desde el sur y se abre mediante un hueco abocinado (que introduce en la sala los primeros rayos de luz del mediodía) hacia el oeste, ofreciendo visiones del macizo Peñas de Aia.

Debido a la escasa altura del desván para albergar los 3 dormitorios de los niños, sobre los muros de piedra perimetrales se ejecuta un zuncho/levante de hormigón armado (piedra líquida de nuestro tiempo). El hormigón tintado queda texturado a base de tablero vertical. Esta textura se convierte en madera de acacia reutilizada en la parte alta de la fachada sur, recordando el antiguo entramado de madera. La parte baja de esta fachada se reviste a base de mortero de cal texturado y las ventanas y puertas se construyen mediante madera de castaño. El levante de hormigón y la cubierta sin alero, debido a los importantes vientos de la zona, intensifican las condiciones de pesadez y torre del caserío.

Todos los profesionales (encofradores, carpinteros, albañiles etc.) que han participado en la rehabilitación de este edificio han sido gremios locales que tienen sus talleres a menos de 5km de la obra. Sin embargo, muchos de los trabajos de esta obra, los interiores por ejemplo, los está llevando a cabo la propiedad, de la misma forma que hacían los antiguos baserritarras. Al disponer de recursos muy limitados, han vivido en una “mobil home” junto al caserío mientras se ejecutaban los trabajos, y aunque aún inacabados, la familia ha empezado a habitar el caserío huyendo de las duras condiciones de la “mobil home”.

El propio acto de rehabilitar un caserío que ya no constituye una unidad económica y está en desuso, supone un acto de sostenibilidad. Al edificio se le brinda una segunda oportunidad, otra vida. Sobre lo existente, se han añadido nuevos fragmentos, que se diferencian de los anteriores, pero que envejecerán junto a lo viejo y la pátina del tiempo los unirá contribuyendo a una entidad arquitectónica que seguirá evolucionando y adaptándose a cada momento. Siempre inacabado, pero vivo.

  • Información
  • Autoría

    Clasificación / Tipología

    Edificación
    Rehabilitación
    Paisaje

    Ubicación

    Suspelttiki 19 | Bera 31780 | ESPAÑA

    Otra información

    Fecha Inicio: Diciembre 2022
    Fecha Terminación: Febrero 2024
    Superficie construída: 220m2
    Coste/m2: 1.090€/m2

    Agentes

    Arquitectos técnicos: Julen Rozas Elizalde

    Constructor: Arrixko Igeltseritza SL + Andoni Espelosin (carpintero)

    Director de obra: Ander Rodriguez Korta (Mugara Arquitectura SL)

    Fotografía: Asier Gogortza Asensio

    Promotor: Privado

  • Premios y distinciones
  • -Mención de Honor, Premio Peña Ganchegui a la Joven Arquitectura Vasca 2023.

    -Seleccionado, Premios de Arquitectura 2025 CSCAE.

Fotografías

Planos y dibujos

Estado original + imágenes propuesta

Participaciones en arquia / próxima

No se han encontrado participaciones