arrow-circle-down arrow-circle-left arrow-circle-up arrow-down arrow-left arrow-line-right arrow-right arrow-up ballon close facebook filter glass lock menu phone play point q question search target twitter
X

Arquitectura que confronta materiales antagónicos y texturas contrarias para, en esa fricción, exponer los rasgos identitarios que han construido la memoria doméstica a lo largo de 75 años

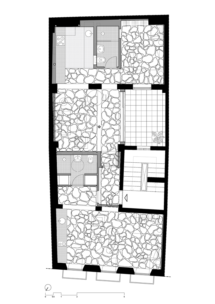
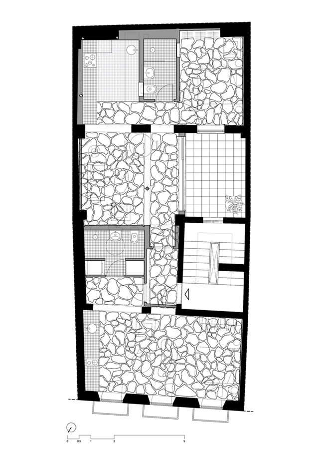
En el barrio de la Magdalena de Granada, en un entorno histórico de la ciudad, se encuentra la vivienda a intervenir. Construida en 1950, con medios austeros y con numerosas modificaciones estructurales originales, a los 90 m² actuales se le precisa ofrecer dos casas independientes y autónomas que puedan responder a modelos familiares contemporáneos: Una primera unidad de vivienda con orientación Noroeste y tres balcones a la calle. De tamaño reducido en un espacio abierto sin particiones y la inserción de un módulo de instalaciones más zona de cuidados. Pensada para un usuario urbanita, dos usuarios, usuario y mascota o ambos, pero los 35 m² son capaces de responder a todas las necesidades domésticas con un equipamiento completo. Una segunda unidad de vivienda a interior con patio, como pulmón y pozo de luz. Con una superficie de 55m², toda la casa orbita en torno al impluvium de mármol blanco con grandes aperturas hacia los ámbitos comunes y estancia excepto el módulo de cuidados, en contacto con la cocina, recubierto de tirolesa o “diente perro” como popularmente se le conoce en la construcción andaluza oriental. El extremo más oscuro de la casa se reviste de una cerámica de pequeño formato con brillo en el acabado y color arena para otorgar la presencia que necesita dada su posición y función en el conjunto del mecanismo doméstico.

Tratamos de recuperar fragmentos de las distintas etapas constructivas que han organizado la actividad de la casa en el tiempo. En el proceso se descubre la estructura matriz de ladrillo y madera con forjados de vigas recicladas y tablazón irregular que apoyan sobre los muros de carga de gran porte de fábrica cerámica. Se fueron mostrando antiguos apeos estructurales de los años 80 con vigas metálicas IPN 300 y algunos inferiores que, con la intervención se han reforzado mediante pilares de Ø 100 de sección circular apoyados sobre dados de hormigón y cartelas en las transiciones. A esta compleja sección de cronologías se añade una nueva capa conformada por un plano horizontal de piedra exótica, salvaje y descontextualizada que alberga los conductos de las nuevas instalaciones y sobre la que se sustentará la nueva etapa vivencial. Además de dos módulos de instalaciones internamente tecnológicos y externamente tradicionales.

La arquitectura que se propone confronta materiales antagónicos y texturas contrarias para, en esa fricción, exponer verazmente los rasgos identitarios que han construido la memoria del lugar a lo largo de 75 años de relato doméstico.

  • Información
  • Autoría

    Clasificación / Tipología

    Rehabilitación
    Reforma
    Interiorismo

    Ubicación

    Calle Darrillo de la Magdalena | GRANADA | ESPAÑA

    Otra información

    Fecha Inicio: Marzo 2025
    Fecha Terminación: Noviembre 2025
    Superficie construída: 85
    Coste/m2: 750€/m2

    Agentes

    Colaboradores: Asunción Cobo

    Fotografía: Javier Callejas

IMÁGENES

PLANOS_ Dos Casas Magdalena

Participaciones en arquia / próxima

No se han encontrado participaciones