arrow-circle-down arrow-circle-left arrow-circle-up arrow-down arrow-left arrow-line-right arrow-right arrow-up ballon close facebook filter glass lock menu phone play point q question search target twitter
X

Construir con memoria y piedra

La parcela objeto de intervención se encuentra en el barrio conocido como “La Cañada de los Priscos” en el borde exterior del casco urbano de La Zubia limítrofe con el Parque Natural de Sierra Nevada en su extremo sur y próximo al término municipal de Cájar. Consta de 1.225 m², con un desnivel transversal este-oeste de 2.50 metros y longitudinal de 4 metros. Previo a la intervención este ámbito urbano estaba destinado a bolsa de aparcamientos en un barrio con una deficiencia generalizada de dotación de equipamiento público que ha llevado a una situación marginal y de inseguridad entre sus vecinos, donde altercados y delincuencia han marcado la convivencia de los últimos años. Y es esta una de las motivaciones fundamentales de proyecto: hacer una arquitectura capaz de regenerar espacios urbanos degradados que mejoren su integración en el conjunto y revitalice las relaciones sociales de la comunidad.

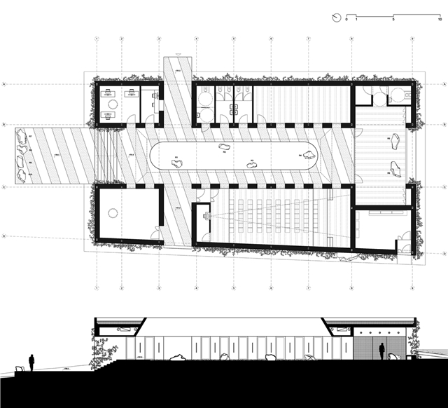
El carácter longitudinal de la parcela y las demandas del programa de usos obligan a un planteamiento formal que atienda a estas dos premisas. Se propone un volumen que colmate la zona de intervención con desarrollo norte-sur a lo largo de la parcela en sentido longitudinal, y que posibilite la aparición de un gran ámbito público a modo de “Plaza” en el centro del equipamiento polivalente capaz de vertebrar y dar sentido a los usos interiores.

Esta nueva plaza, como lugar de encuentro entre vecinos del barrio, es un mirador abierto al cielo y al Parque Natural de Sierra Nevada. Hará las funciones de distribuidor central y fuente de luz y ventilación mediante dos ejes complementarios: uno longitudinal norte-sur de mayor entidad que responde a conexiones de paisaje; y un segundo eje transversal en dirección este-oeste que resolverá conexiones urbanas. En la confluencia de estos dos ejes se resuelve la comunicación y circulación de todos los usos, tanto de formación o actividades culturales, como aquellos eventos más puntuales como conferencias y actos institucionales.

Una arquitectura con vocación atemporal, por su formalidad y su materialidad, alejada de convencionalismos contemporáneos con objeto de recuperar los modos constructivos tradicionales, donde prevalece la técnica manual y no la industrial; donde se construye con la memoria y no con la moda. Como el onírico Danteum[1] de Giuseppe Terragni, el edificio se encierra en sí mismo, discrimina su exterior para buscar la contemplación y la reunión social, contrastando su piel austera y silenciosa con su interior colorido y dialogante. La materialidad se muestra a través de una dualidad primigenia como es la piedra y el tiempo.  Desde la gravilla, al canto rodado; de la laja hasta la roca. Siendo el suelo que caminamos, el techo que habitamos y el asiento en donde descansamos. Por último, el tiempo y su discurrir continuo darán testimonio del paso de las estaciones con una vegetación que cubrirá por completo la piel exterior y tornará de verde a rojo y la nada. Y así siempre.



[1] El Danteum (1938-1940) de Giuseppe Terragni fue un proyecto no construido para la Exposición Universal de Roma de 1942 en honor a Dante Aliguieri y su obra “La Divina Comedia”.

  • Información
  • Autoría

    Clasificación / Tipología

    Edificación social
    Edificación
    Urbanismo

    Ubicación

    C/ Manuel Roldán Prieto, s/n. CP 18140 | La Zubia (Granada) | ESPAÑA

    Otra información

    Fecha Inicio: Enero 2024
    Fecha Terminación: Diciembre 2024
    Superficie construída: 450
    Coste/m2: 1100 €/m2

    Agentes

    Arquitectos técnicos: Alberto Olea

    Colaboradores: Asunción Cobo

    Contratista: MULCONSA SL

    Estructuras: Eduardo Serrano

    Fotografía: Juanan Barros

  • Premios y distinciones
  • Catalogado. La Casa de la Arquitectura

IMÁGENES

PLANOS

Participaciones en arquia / próxima

No se han encontrado participaciones