arrow-circle-down arrow-circle-left arrow-circle-up arrow-down arrow-left arrow-line-right arrow-right arrow-up ballon close facebook filter glass lock menu phone play point q question search target twitter
X

espacio de coworking, encuentro y programas híbridos

Sobre la traza de la antigua Puerta de San Juan de Acre se proyecta un espacio de trabajo que, a causa del desnivel que existió entre el intradós y el trasdós de la muralla de la ciudad medieval, se ubica en un edificio cuya planta baja queda a cota con el río, deprimida respecto de la avenida de Torneo y junto a una pequeña plaza con cuatro naranjos.

Se trata de un lugar de transición situado entre el límite del centro histórico con el río y el tejido de proximidad del barrio de San Vicente, lo que le confiere un carácter simultáneo de nodo y oasis urbano. La transformación de este espacio está fundamentada en la apertura de un hueco cuadrado de dos metros de lado para introducir luz, la sombra de unos naranjos y la vida de una pequeña plaza junto al Guadalquivir.

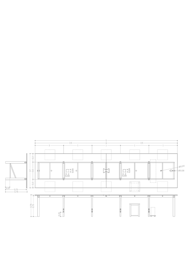
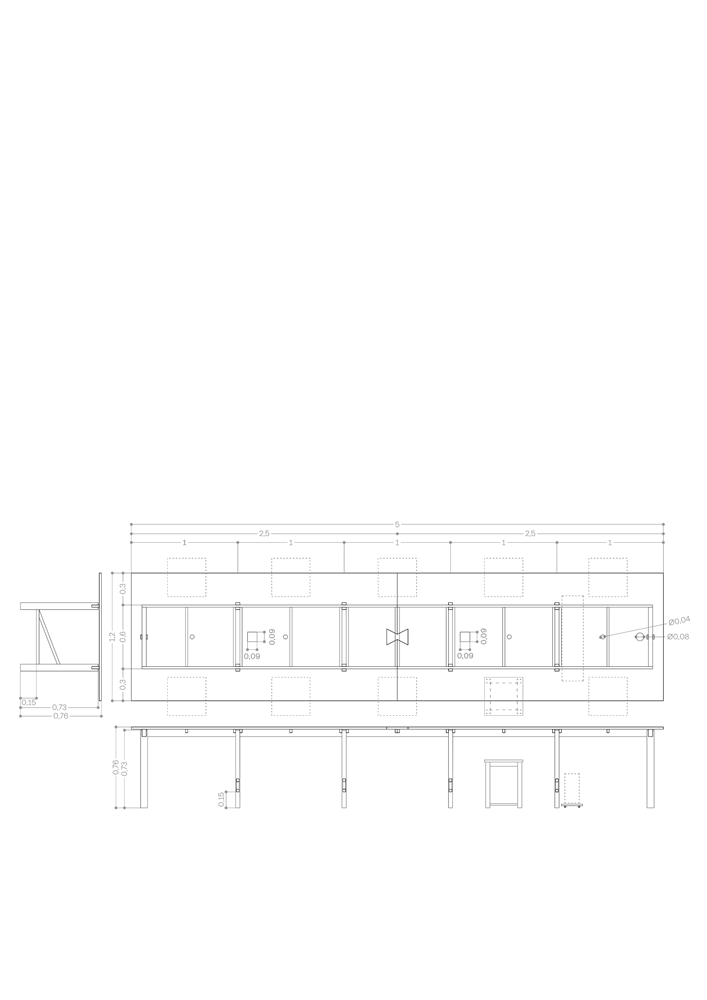
Además del espacio principal de trabajo, el resto de estancias del programa, tales como zona de reunión, office, aseo o almacenamiento, pasan a un segundo orden, ocultos tras una división textil que permite diferentes grados de relación y apertura. Hacia el exterior, una puerta metálica permite abrir el espacio hacia una escalinata que asciende hacia el río; y en el centro de la sala, una gran mesa de madera genera un espacio de trabajo compartido.

La elección monocromática para todas las superficies permite poner en relieve las diferentes texturas y materiales existentes en el interior, es decir, las sucesivas capas e intervenciones realizadas en el local incluyendo la actual — hormigón, yeso, alicatado, trazas de demoliciones…—, y cede protagonismo a los elementos que articulan la intervención — la ventana, la gran mesa, la lámpara descolgada, o el propio aluminio y madera de los nuevos objetos.

Además del uso profesional, el espacio ha acogido el desarrollo de actividades como la exposición colaborativa Fugas (NEBSur+ y Fundación Arquitectura Contemporánea), encuentros de la Agrupación de Jóvenes Arquitectos del Colegio Oficial de Arquitectos de Sevilla o sesiones de grabación musical a cargo del colectivo Ruido Blanco; y funciona también como galería expositiva para artistas andaluces emergentes. La multiplicidad de programas da cuenta de la flexibilidad del espacio y su capacidad de adaptación a diferentes necesidades.

  • Información
  • Autoría

    Clasificación / Tipología

    Reforma
    Interiorismo
    Escaparatismo

    Ubicación

    Calle Perez de Garayo 2 | Sevilla | ESPAÑA

    Otra información

    Fecha Inicio: Octubre 2024
    Fecha Terminación: Diciembre 2024
    Superficie construída: 70
    Coste/m2: 150

fotografías

dibujos

actividades

Participaciones en arquia / próxima

No se han encontrado participaciones