arrow-circle-down arrow-circle-left arrow-circle-up arrow-down arrow-left arrow-line-right arrow-right arrow-up ballon close facebook filter glass lock menu phone play point q question search target twitter
X

Reforma de un ático en la Vega de Granada

El proyecto, que comenzó con una mudanza, encontró su lógica en el desalojo mismo de un gran volumen de piedra extraída de una cantera cercana, cualificando los espacios de la casa por el uso de este material como elemento unitario capaz de dotar a las estancias de una atmósfera tectónica de vetas cambiantes, al tiempo que diluye la conexión con el gran espacio de terraza exterior.

El mismo material se utiliza en diferentes formatos, desde la cuadrícula para la superficie de pavimentos y muros, a las considerables losas para la escalera que conecta los dos niveles de la vivienda; grandes piezas monolíticas talladas para la pila y los lavabos, colocado el de mayores dimensiones bajo un gran hueco que mira a Sierra Nevada; o incluso dispuestas en bruto y sin pulir, a modo de encimera en una cocina abierta y luminosa. El mismo mármol blanco resuelve además jardineras y alberca, rodapiés y zócalos, encimeras y baldas, una chimenea o los sofás de la zona de estar, que son una extensión más del proceso de tallado de la vivienda.

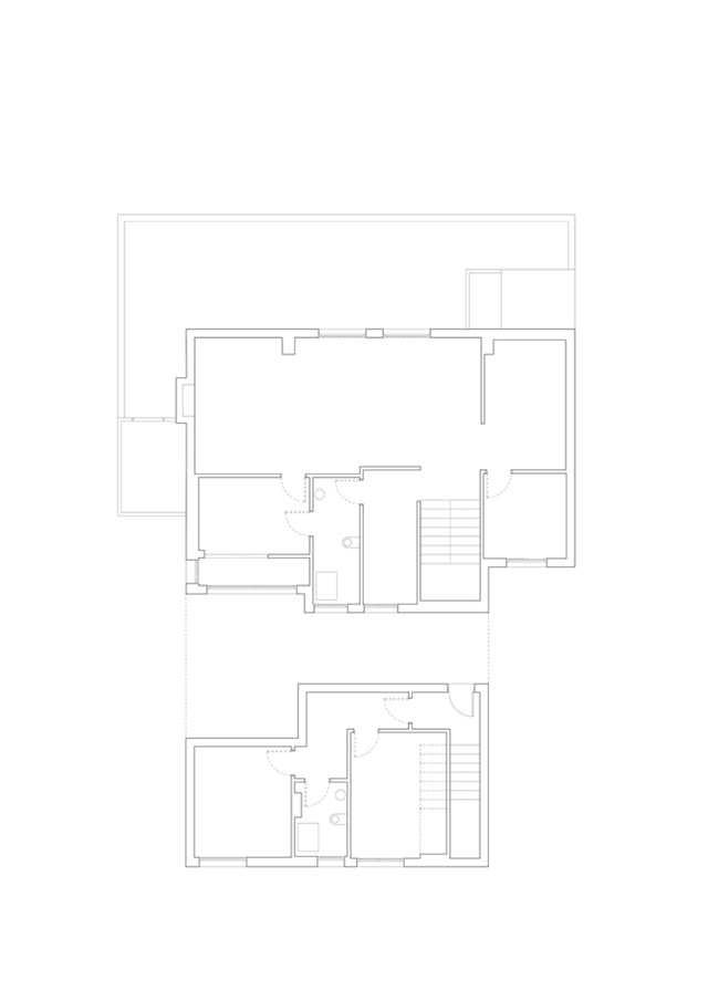
El programa de la vivienda queda determinado por su organización en dos plantas; en la inferior un recibidor conduce a dos dormitorios y un baño pétreo, junto a una escalera esculpida en la que la terraza derrama la luz de la tarde; una vez arriba, el desembarco de la escalera queda franqueado por los accesos enfrentados a otros dos dormitorios y un baño con vistas, encadenando los pasos hasta el espacio principal de la vivienda, que mira hacia una gran terraza-jardín.

Para que se produjese este ingente traslado de material excavado, muebles y enseres, era necesario encontrar un lugar con suficiente espacio exterior para albergar las decenas de macetas, tiestos, setos, arbustillos y árboles que crecieron en las terrazas de otro hogar. Esta estancia a cielo abierto se convierte en el centro de las actividades de sus habitantes, provocando que los espacios interiores no sean más que prolongaciones del mismo, como oquedades en la roca que en cierto momento diluyen sus límites al correr las carpinterías que los separan. En esa terraza se confeccionan una lámina de agua para el baño estival y un plano de sombra y cobijo, que poco a poco se verá engullido por los jazmines y las glicinias.

Los cantos, losas y monolitos de piedra cortada dotan ahora de forma y atmósfera, guardan naturaleza y agua, sombra y aire en un jardín fresco vigilado por una vieja máscara de piedra y suspendido en las alturas.

fotografías

dibujos

Participaciones en arquia / próxima

No se han encontrado participaciones