arrow-circle-down arrow-circle-left arrow-circle-up arrow-down arrow-left arrow-line-right arrow-right arrow-up ballon close facebook filter glass lock menu phone play point q question search target twitter
X

Intervenimos en la planta primera de una vivienda tradicional de principios del siglo XX para transformarla en casa estudio, aprovechando y poniendo en valor la mayor parte de los elementos existentes.

 

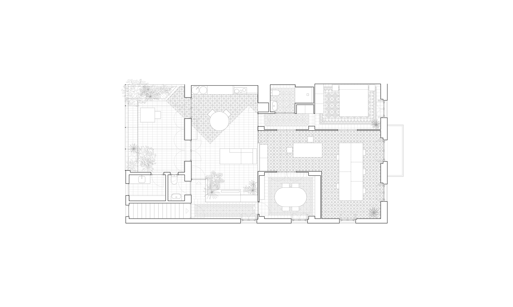
En la calle Mayor de un pueblo de la huerta norte de València, intervenimos en la planta primera de una vivienda tradicional de principios del siglo XX para transformarla en casa estudio para pareja. Situada en esquina, la vivienda disfruta de tres fachadas y destaca por su altura interior y el considerable buen estado de techos, pavimentos, alicatados o carpinterías interiores. Su estado previo se caracteriza por una sucesión de estancias auxiliares que servían a la planta baja cuando todo era una misma vivienda, disponiendo de un espacio de cocina pero careciendo de servicios mínimos como baños.

 Desde el acceso, en el extremo sur, encontramos tres crujías estructurales paralelas que culminan en la fachada principal a norte. Las óptimas orientaciones a norte y este nos llevan a disponer en las dos últimas crujías la zona de estudio y de noche, siendo mínima la intervención en esta zona y reduciéndose a disponer un baño, actualizar las instalaciones y restaurar la carpintería exterior de madera. De esta manera la intervención se concentra en la primera crujía, que abre a una terraza orientada a sur y que constituye, por tanto, el espacio idóneo para disponer en él la zona de día.

 En primer lugar se retiran los tres tabiques que compartimentaban esta crujía, con el objetivo de generar un espacio principal e integrando en este la cocina existente. A continuación, se dispone una pieza de carpintería, a modo de mueble habitado, que configura espacialmente la planta: resuelve la privacidad entre casa y estudio, organiza el acceso independiente a cada una de las partes y se adapta a la bancada existente para disponer el mobiliario de cocina del que carecía la vivienda. Pequeñas operaciones, como agrandar uno de los huecos de salida a la terraza, reparar los acabados de la cocina o abrir una ventana interior en el mueble habitado, terminan de configurar este espacio.

 Los pavimentos se mantienen en su estado original en la zona de noche y estudio, pero la reconfiguración de la zona de día y la presencia en cocina y terrazas de pavimentos deteriorados fruto de anteriores intervenciones nos lleva a replantearlos aquí en su totalidad. En primer lugar, se retira cuidadosamente todo el pavimento original de baldosa hidráulica para su limpieza y clasificación, distinguiendo dos tipos: uno de ellos se reutiliza para crear una suerte de alfombra de acceso, mientras que el otro sustituye las piezas rotas en la zona de estudio y se recoloca en la zona de cocina. Su nueva disposición realiza un giro de 45º que lo distingue frente a los tramos que conservan su posición original y le permite extenderse bajo la mesa de comedor, definiendo también los recorridos hacia la terraza y zona de noche.

La retirada del pavimento no original y deteriorado hace necesario un nuevo material, que a su vez permita configurar el banco y jardinera que definirán los límites de la terraza. Se llega aquí a la baldosa de barro cocido, muy presente en la tradición constructiva local. Su geometría rectangular nos permite adaptarnos al giro del pavimento sin desperdiciar material y una junta ancha hace posible un replanteo a pieza entera tanto en terraza como en interiores.

 La extensión de los pavimentos a la terraza crea una notable continuidad interior-exterior. Unas largas persianas alicantinas generan sombra sobre esta terraza muy expuesta al sol al mismo tiempo que le confieren intimidad, creando una suerte de estancia exterior que duplica la superficie de la zona de día.

  • Información
  • Autoría

    Clasificación / Tipología

    Rehabilitación
    Reforma

    Ubicación

    Calle Mayor, 31
    46110 | Godella
    VALENCIA | ESPAÑA

    Otra información

    Fecha Inicio: Marzo 2022
    Fecha Terminación: Julio 2023
    Superficie construída: 110m2
    Coste/m2: 1.000€/m2

    Agentes

    Constructor: Rafael Camps Arolas

  • Premios y distinciones
  • Premio COACV 2025 Categoría reforma y/o ampliación de edificios existentes

    Mención especial rehabilitación uso residencial Exposición y Catálogo Arquitectura Reciente en Valencia 2023-24-25 

Fotografías

Documentación gráfica

Obra

Participaciones en arquia / próxima

IX Edición 2022-2023