arrow-circle-down arrow-circle-left arrow-circle-up arrow-down arrow-left arrow-line-right arrow-right arrow-up ballon close facebook filter glass lock menu phone play point q question search target twitter
X

Fernando Poo es un proyecto que reinterpreta la planta baja de un edificio construido a finales del siglo XIX en el barrio del Poble Nou de Barcelona, convirtiéndola en un espacio híbrido. Este proyecto se inscribe en la investigación teórica y práctica “Proyectar el vacío”, que aboga por transformar la concepción de la vivienda, dejando de considerarla como una mercancía definida por su valor de mercado para entenderla como una infraestructura definida por su potencial de uso.

Hoy, más que nunca, la producción trasciende las fronteras que, desde el inicio de la modernidad, han separado el espacio doméstico del lugar de trabajo. Sin embargo, a pesar de los cambios tecnológicos, la inestabilidad social y las nuevas formas de vivir y trabajar, sigue predominando la domesticidad en su formato más tradicional de hogar familiar.

Fernando Poo se trata de nuestro estudio-vivienda, por lo que partimos de la premisa de diseñar un espacio capaz de transformarse tanto a largo como a corto plazo. En esta propuesta, la arquitectura se concibe como un marco o soporte cuyo vacío garantiza su adaptabilidad, actuando como un catalizador de nuevas formas de domesticidad que trascienden las dicotomías tradicionales entre vivir-trabajar.

Partimos de un espacio completamente diáfano y sin rastro de memorias pasadas, por lo que optamos por retirar todos los revestimientos superficiales de los muros para hacer visibles los únicos materiales originales de la construcción y, al mismo tiempo, evitar la aparición de humedades al favorecer la transpiración de la pared.

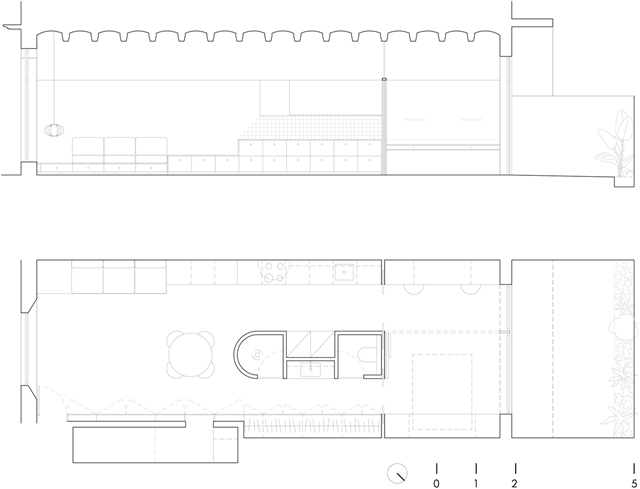
En el proyecto se han conjugado dos estrategias ensayadas en propuestas anteriores. El programa funcional y el almacenaje se acumulan en el perímetro, liberando así el resto de la superficie. Al mismo tiempo, se levanta un volumen exento que funciona como filtro entre las diferentes estancias, conteniendo el baño, parte de la cocina y los paneles móviles que permiten segregar el espacio según las necesidades cambiantes a lo largo del día. A partir de la definición y disposición de estos elementos, lo que denominamos “los medios mínimos para habitar un lugar”, se establecen una serie de vacíos no programados con el potencial para albergar diferentes usos.

Por su parte, la apertura de la fachada posterior, que facilita la continuidad entre el interior y el exterior, y el uso de tonos claros y aluminio cepillado en el núcleo buscan maximizar la luminosidad en un espacio que de otra manera resultaría demasiado oscuro.

Fotografías

Planos

Participaciones en arquia / próxima

No se han encontrado participaciones