arrow-circle-down arrow-circle-left arrow-circle-up arrow-down arrow-left arrow-line-right arrow-right arrow-up ballon close facebook filter glass lock menu phone play point q question search target twitter
X

Park House es la rehabilitación de un pequeño apartamento en la planta ático de un edificio de 1973. Diseñado por el arquitecto José de José María y Lillo, el edificio es un referente reconocible en el barrio barcelonés de Vallcarca, definido por sus distintivas cerámicas vidriadas en tonos azules, acentuadas con detalles en color mostaza.

El proyecto actualiza una distribución obsoleta y excesivamente compartimentada, compuesta por numerosas estancias de pequeñas dimensiones. La estrategia de diseño se centra en abrir el espacio y adaptarlo a los modos de vida contemporáneos, utilizando materiales y una paleta cromática que dialogan con la identidad original del edificio, estableciendo un vínculo claro entre pasado y presente.

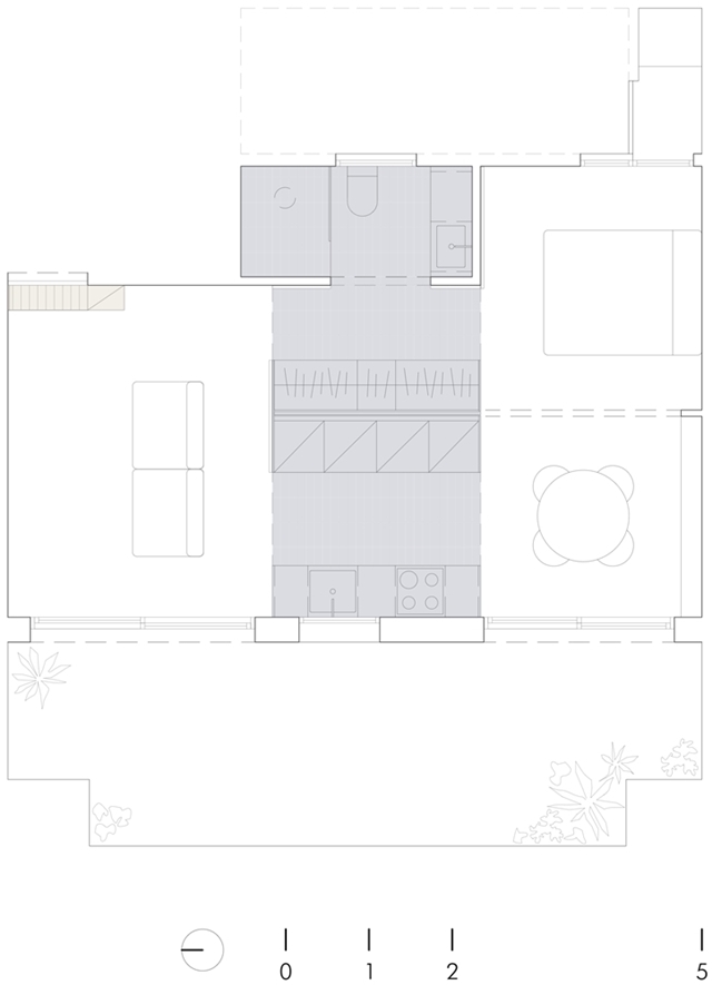
El núcleo de la intervención es una franja lineal de servicios que concentra “los medios mínimos para habitar un lugar”: almacenaje, cocina y baño. Este elemento alberga además todas las instalaciones mediante un falso techo técnico, liberando el resto del apartamento para funcionar como un espacio continuo, abierto y flexible.

Materialmente, la franja se caracteriza por un pavimento de baldosas cerámicas en azul intenso, que contrasta en escala y tono con el porcelánico de gran formato empleado en el resto de la vivienda. Esta yuxtaposición permite definir distintas zonas de uso sin recurrir a particiones físicas.

Los elementos que conforman la franja —circulaciones, pasos de puerta, la ducha y el mobiliario del vestidor y la cocina— se diseñan siguiendo la modulación del pavimento, generando un diálogo continuo entre la materialidad cerámica y la organización espacial. El baño, la única estancia completamente cerrada, se reviste con la misma pieza cerámica en color blanco, incorporando detalles en mostaza que reinterpretan la paleta original del edificio.

Un sistema de puertas y paneles correderos permite múltiples configuraciones espaciales, fomentando la flexibilidad de usos y las relaciones entre las distintas estancias. 

En cuanto a la iluminación, se recuperan los globos originales de la vivienda —presentes también en el resto del edificio— y se combinan con nuevas luminarias que refuerzan la identidad del proyecto. La repetición de elementos circulares —ventanas, espejos y tiradores— actúa como leitmotiv formal, aportando coherencia y continuidad al conjunto.

Fotografías

Planos

Participaciones en arquia / próxima

No se han encontrado participaciones