arrow-circle-down arrow-circle-left arrow-circle-up arrow-down arrow-left arrow-line-right arrow-right arrow-up ballon close facebook filter glass lock menu phone play point q question search target twitter
X
  • DESDE EL CENTRO


  • DESDE EL CENTRO


  • DESDE EL CENTRO


  • DESDE EL CENTRO


  • DESDE EL CENTRO


  • DESDE EL CENTRO


  • DESDE EL CENTRO


  • DESDE EL CENTRO


Rehabilitación de una vivienda modernista en Sants, Barcelona.

El proyecto busca preservar y actualizar una vivienda en un edificio modernista de Barcelona con más de 100 años de antigüedad, manteniendo y renovando el patrimonio cultural que representan estas viviendas de finales de siglo XIX y principios del XX para la ciudad.

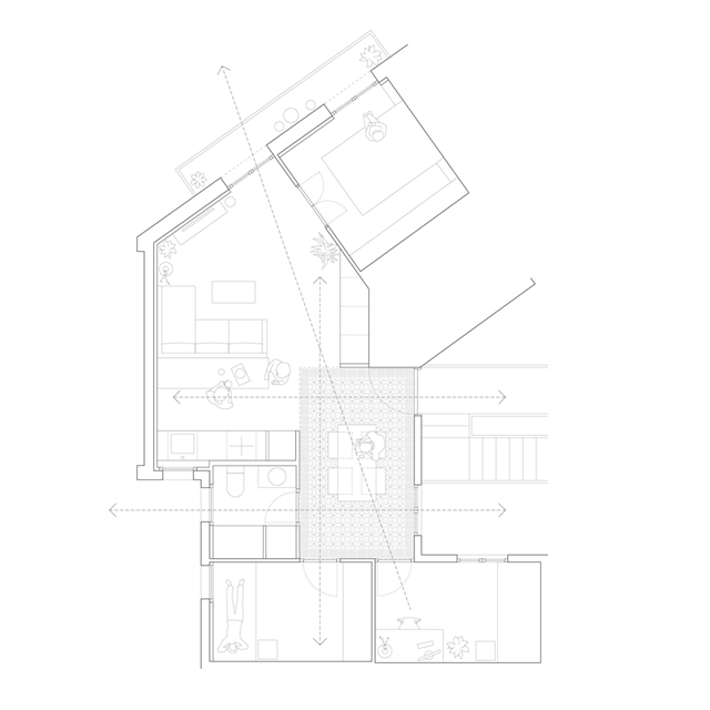
La primera decisión parte de reconocer y valorar la tipología de vivienda existente y, a través de pequeños ajustes, potenciar sus cualidades. Para ello la intervención mantiene la disposición de las estancias, ampliando ligeramente el espacio del recibidor para flexibilizar su uso y facilitar que pueda acoger programas diversos.

Este espacio pasa a constituir el centro de gravedad de la planta, organizando accesos, recorridos y visuales a través de las distintas estancias. El espacio central  se convierte en protagonista y elemento distribuidor de la vivienda, eliminando pasillos y aprovechando al máximo su superficie útil. La disposición de las estancias y de las nuevas aperturas genera un entramado de vistas cruzadas a través de la vivienda, dotando de mayor amplitud e iluminación a los distintos espacios y conectándolos con el exterior.

Desde una actitud de reaprovechamiento se busca recuperar y reorganizar los elementos existentes en la vivienda: pavimentos, puertas, ventanas… reutilizando al máximo los recursos disponibles para minimizar gastos y preservar su valor histórico.

El proyecto explora cómo la arquitectura puede encarnar la circularidad no a través de innovaciones de alta tecnología ni de usos futuros especulativos, sino mediante la contención, la reutilización y la reorganización de lo ya existente. En lugar de introducir nuevos materiales o sistemas, la intervención prioriza hacer lo estrictamente necesario, prolongando la vida de las estructuras, los elementos y las tipologías existentes amortizando así su valor ecológico incorporado. Este reaprovechamiento tipológico y material convierte al proyecto en un archivo vivo de su propia historia, permitiendo que estas herencia cultural adquiera nueva relevancia y función.

Este posicionamiento patrimonial requiere de un trabajo de inventariado y recolocación de los elementos existentes, con especial atención a los pavimentos. En palabras de Albert Cuchí:

“Los conocidos pavimentos modernistas no son sino el remedo veraniego de los dibujos de las alfombras que tapizaban el suelo de las viviendas durante el invierno. En el paso de los meses fríos a los más cálidos, las viviendas se desvestían de sus abrigos invernales para dar paso a otra gestión basada en la ventilación y la inercia.”

Se busca preservar esta idea. La casa es una secuencia de alfombras.

  • Información
  • Autoría

    Clasificación / Tipología

    Intervención en el Patrimonio
    Rehabilitación
    Reforma

    Ubicación

    C/Ermengarda 10-12 | BARCELONA | ESPAÑA

    Otra información

    Fecha Inicio: Agosto 2024
    Fecha Terminación: Noviembre 2024
    Superficie construída: 63,97m2
    Coste/m2: 837,65

    Agentes

    Colaboradores: Laura Florentín Aragón

    Estructuras: MVA Despatx d'arquitectura i estructures (Jordi Velázquez)

FOTOGRAFÍA

DOCUMENTACIÓN GRÁFICA

Participaciones en arquia / próxima

No se han encontrado participaciones