-
Becas y convocatorias
AZ06 es la reforma de un piso existente para acoger a una familia de cinco personas en Madrid.
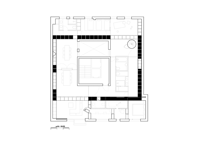
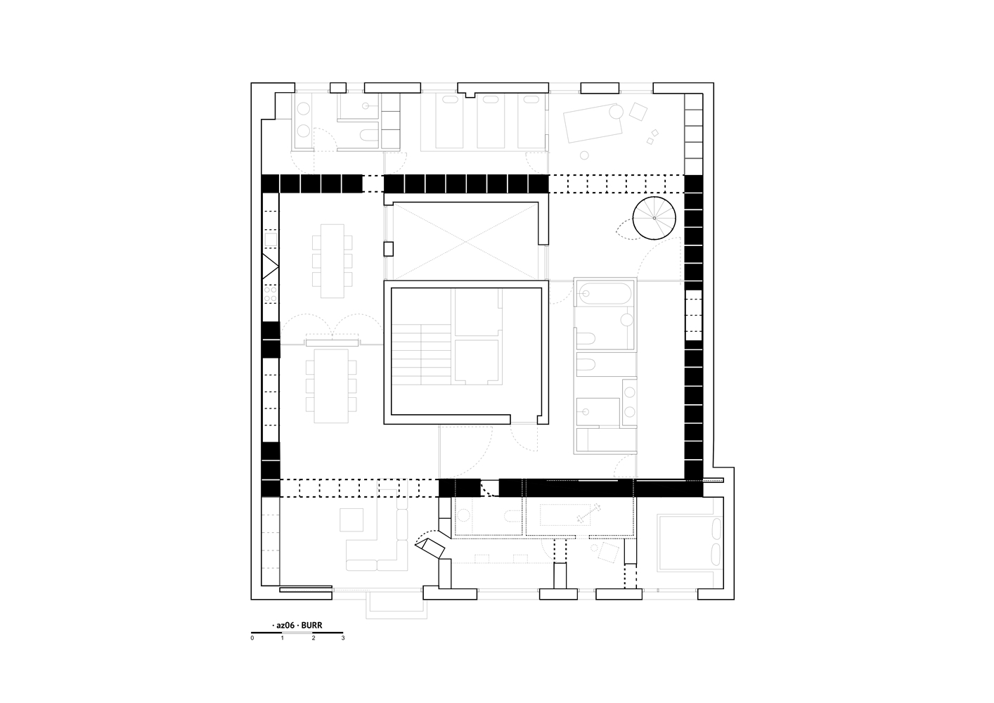
AZ06 es la reforma de un piso existente para acoger a una familia de cinco personas en Madrid. El proyecto parte de una condición dada por la propia distribución base: la presencia del núcleo del edificio (comunicaciones y patio interior) como centro inevitable de la planta. La intervención aprovecha esa centralidad para organizar una vivienda que rota en torno a ese vacío, fomentando una circulación que atraviesa la casa y permite recorrerla cíclicamente de distintas formas. La vivienda deja de entenderse como una secuencia de estancias cerradas y pasa a operar como un sistema de paso: cada habitación cuenta con un camino de entrada y uno de salida, y todas adquieren, en mayor o menor medida, la condición de estancia de paso.
En planta, la intervención se configura como un recinto infraestructural. Una gran pieza de mobiliario divide los espacios más públicos de los más privados y, al mismo tiempo, se convierte en el gran elemento servidor de la vivienda: aloja instalaciones, concentra capacidad de almacenamiento y ordena los accesos a baños y aseos. No se trata de “amueblar” la planta, sino de introducir un espesor operativo que reorganiza el conjunto, absorbe lo técnico y libera el resto de la vivienda para usos cambiantes.
Materialmente, este gran recinto perimetral se resuelve en DM barnizado. Sobre esa base continua, todas las intervenciones singulares se entienden como incrustaciones o complementos: cocinas, grandes portones, estanterías e incluso accesos estancias ocultas aparecen lacadas en color amarillo. El color no funciona como acento superficial, sino como código de lectura: señala lo operativo, lo que se abre, lo que contiene, lo que transforma el plano de mobiliario en arquitectura habitable.
El proyecto se construye, por tanto, desde dos estrategias complementarias. Por un lado, un gran gesto infraestructural que concentra servicios y ordena la planta. Por otro, una concatenación de espacios pensados para ser recorridos de distintas formas, admitiendo itinerarios alternativos y produciendo encuentros no programados. En consecuencia, los espacios adoptan formas y tamaños muy distintos según los usos que deben alojar: desde piezas que buscan la máxima extensión para acoger la vida familiar en conjunto hasta pequeños ámbitos casi secretos.
Uno de los módulos de la estantería central de la casa, que aloja la biblioteca familiar, se abre para dar acceso a un pequeño estudio: una cámara cerrada destinada al trabajo aislado, concentrado, conectada a su vez con el dormitorio principal. El proyecto utiliza el mueble como umbral, como puerta gruesa, capaz de contener programas dentro del propio sistema.
Rompiendo esa lógica, aparece una pieza singular: una escalera metálica de caracol que cuelga del forjado superior y da acceso a una última estancia aislada, la única que, junto a baños y aseos, solo tiene una vía de entrada y salida. Exteriormente, la escalera se forra con una chapa metálica lacada en color rosa, conformando un cilindro que vuela sobre el suelo de madera contrachapada del resto de la vivienda. En el interior, el espacio se reviste con una capa de textil acolchado, casi como grandes cojines alargados, que arropan al habitante y construyen una barrera acústica respecto al resto de la casa.
Reforma
Madrid
Fecha Inicio: Diciembre 2024
Fecha Terminación: Abril 2025
Superficie construída: 200
Coste/m2: 1500
Colaboradores:
Elena Fuertes
Ramón Martínez
Natalia Molina
Amanda Bouzada
Guillermo Hernández
Marina van der Linden