arrow-circle-down arrow-circle-left arrow-circle-up arrow-down arrow-left arrow-line-right arrow-right arrow-up ballon close facebook filter glass lock menu phone play point q question search target twitter
X

SET-A es un proyecto de identidad espacial para Amasa.

Con el objetivo de generar espacios identitarios para Amasa, obrador de masa madre, se planteó una estrategia de intervención sobre espacios existentes que ofreciera suficiente flexibilidad para adaptarse a distintas situaciones, creando al mismo tiempo ambientes reconocibles e identificables con la marca sin necesidad de replicarse formalmente. Se propone así un proceso homotético, más que una repetición literal.

La estrategia se articula en dos acciones fundamentales: fondo y figura.
El fondo define el contenedor sobre el que se actúa. La intención es conservar, en la medida de lo posible, el estado original de los espacios preexistentes, ya sea por su valor arquitectónico —como en el caso de Amasa Santa Isabel— o como respuesta a la dinámica constante de demolición y reconstrucción que impone la renovación comercial de muchas ciudades. En este sentido, el procedimiento consiste en mantener las envolventes exteriores prácticamente inalteradas, permitiendo el paso de las nuevas instalaciones vistas sobre muros o tabiques. A continuación, una gran cortina textil envuelve el nuevo espacio, ocultando tras de sí el fondo original. De este modo, si en algún momento el local debe abandonarse, la intervención sobre el espacio existente habrá sido mínima. Se trata, por tanto, de un revestimiento blando, efímero y reversible, que permite modificar el espacio con el tiempo sin necesidad de obras. Este gesto, además, unifica el fondo y destaca por contraste las figuras que se recortan sobre él.

La figura es un objeto ajeno al espacio. Un conjunto de elementos de apoyo desarrollado a partir de bases estandarizadas, formadas por piezas normalizadas unidas entre sí para conformar estructuras tubulares de acero inoxidable. Las uniones se señalan mediante protectores de ferralla —conocidos en obra como "setas"—, empleados habitualmente por razones de seguridad. Son estas "setas" las que dan nombre al set.
Cada base se compone por agregación de estos elementos tubulares, coronados por encimeras de formas y materiales variables, seleccionados en función de su uso específico: expositores, mesas auxiliares, puntos de cobro, etc. Los materiales empleados para estas superficies incluyen maderas, piedras o metales lacados, elegidos para realzar los distintos productos dispuestos sobre ellas.

Estos elementos se distribuyen libremente en el espacio que ocupan, favoreciendo un tránsito fluido y continuo. Su disposición busca desjerarquizar la relación entre cliente, personal y producto, dando lugar a un entorno de funciones atomizadas.

En el caso concreto de Amasa Santa Isabel, la intervención se centró en la recuperación de los escaparates originales del local, así como en la conservación del color azul característico de esta esquina madrileña. También se rehabilitó el pavimento de madera existente antes de introducir los fondos textiles y las piezas de mobiliario.

 

Set-A busca así generar una familia de espacios conectados por una lógica común, sin necesidad de ser idénticos. Una forma blanda de intervenir en distintos locales comerciales de la ciudad.

  • Información
  • Autoría

    Clasificación / Tipología

    Reforma

    Ubicación

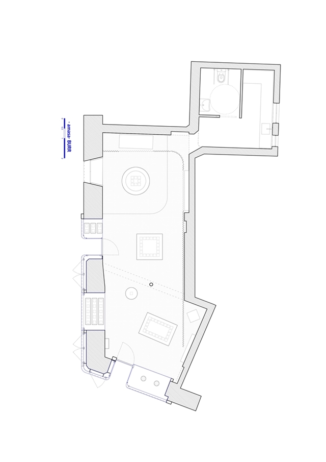
    calle Santa Isabel, 7 | Madrid | ESPAÑA

    Otra información

    Fecha Inicio: Enero 2025
    Fecha Terminación: Marzo 2026
    Superficie construída: 120
    Coste/m2: 1200

    Agentes

    Colaboradores: Elena Fuertes
    Ramón Martínez
    Amanda Bouzada
    Natalia Molina
    Marina van der Linden
    Guillermo Hernández

    Constructor: V15

    Fotografía: Maru Serrano

IMÁGENES

PLANOS

Participaciones en arquia / próxima

No se han encontrado participaciones