arrow-circle-down arrow-circle-left arrow-circle-up arrow-down arrow-left arrow-line-right arrow-right arrow-up ballon close facebook filter glass lock menu phone play point q question search target twitter
X
  • Vivienda unifamiliar aislada

    PONTEVEDRA
  • Vivienda unifamiliar aislada

    PONTEVEDRA
  • Vivienda unifamiliar aislada

    PONTEVEDRA
  • Vivienda unifamiliar aislada

    PONTEVEDRA
  • Vivienda unifamiliar aislada

    PONTEVEDRA

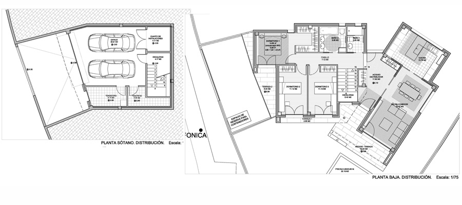
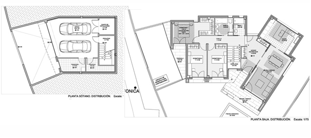
ADAPTACIÓN MATEMÁTICA Y TOPOGRÁFICA A LA PARCELA

Vivienda compuesta de planta baja y sótano que se adapta a una parcela triangular y situada a un diferente nivel que la carretera de acceso. Este hecho se utiliza para crear una planta sótano con acceso para vehículos a cota desde la vía y a cota, igualmente, para peatones a la planta de vivienda. 

La composición de volúmenes en C configura una casa que se abre a la parcela, al sol y las vistas y se cierra a laterales y zona posterior.Optimización de espacios y reducción de espacios de circulación para ajustar al máximo el presupuesto.

  • Información
  • Autoría

    Clasificación / Tipología

    Edificación

    Ubicación

    Avda. Santa Marina, 112 - Cabral
    36318 VIGO
    PONTEVEDRA | ESPAÑA

    Otra información

    Fecha Terminación: Marzo 2012

    Agentes

    Arquitectos técnicos: ÁNGEL COSTAS GONZÁLEZ

    Contratista: Construcciones COPERFI, S.L.

    Fotografía: PABLO MUIÑOS PAZOS

    Promotor: MARCOS MÉNDEZ GARCÍA y MARTA VÁZQUEZ GONZÁLEZ

Galería realización

0 comentarios


No hay comentarios ni valoraciones para este producto.
¡Sé el primero en comentar y valorar!