arrow-circle-down arrow-circle-left arrow-circle-up arrow-down arrow-left arrow-line-right arrow-right arrow-up ballon close facebook filter glass lock menu phone play point q question search target twitter
X
  • CENTRO DE DINAMIZACIÓN FLUVIAL Y APROVECHAMIENTO DEL MEDIO NATURAL

    PONTEVEDRA
  • CENTRO DE DINAMIZACIÓN FLUVIAL Y APROVECHAMIENTO DEL MEDIO NATURAL

    PONTEVEDRA
  • CENTRO DE DINAMIZACIÓN FLUVIAL Y APROVECHAMIENTO DEL MEDIO NATURAL

    PONTEVEDRA
  • CENTRO DE DINAMIZACIÓN FLUVIAL Y APROVECHAMIENTO DEL MEDIO NATURAL

    PONTEVEDRA
  • CENTRO DE DINAMIZACIÓN FLUVIAL Y APROVECHAMIENTO DEL MEDIO NATURAL

    PONTEVEDRA

LA MÍNIMA INTERFERENCIA ES LA BASE DE LA INTERVENCIÓN 

Entorno natural:

Se concibe un proyecto global de intervención. No sólo se proyecta la construcción de un edificio que pretende la máxima integración natural posible, sino que se propone la recuperación del contexto natural más adecuado para la zona.

En cierta manera puede entenderse la orilla del Miño en el entorno de esta parcela (y prácticamente en todo su recorrido por los caminos de pescadores desde Frieira hasta el estuario) como un paseo por una estructura reclamada por la naturaleza; este proyecto pretende preservar esa ocupación sin que el descuido y/o abandono haga intransitable el territorio.

Por todo ello se propone la restauración del ecosistema y la recuperación de la biodiversidad con un plan de prevención de incendios con el mantenimiento de este espacio libre de maleza, el cuidado de los árboles de ribera y la reforestación eficaz con especies autóctonas que no dañen el paisaje ni el equilibrio (en la actualidad hay muy pocos y su tala incontrolada ha propiciado un crecimiento desnaturalizado de los ejemplares).

El acceso y aproximación al río se haría utilizando las instalaciones ya existentes (pantalán público y playa fluvial)

Edificio:

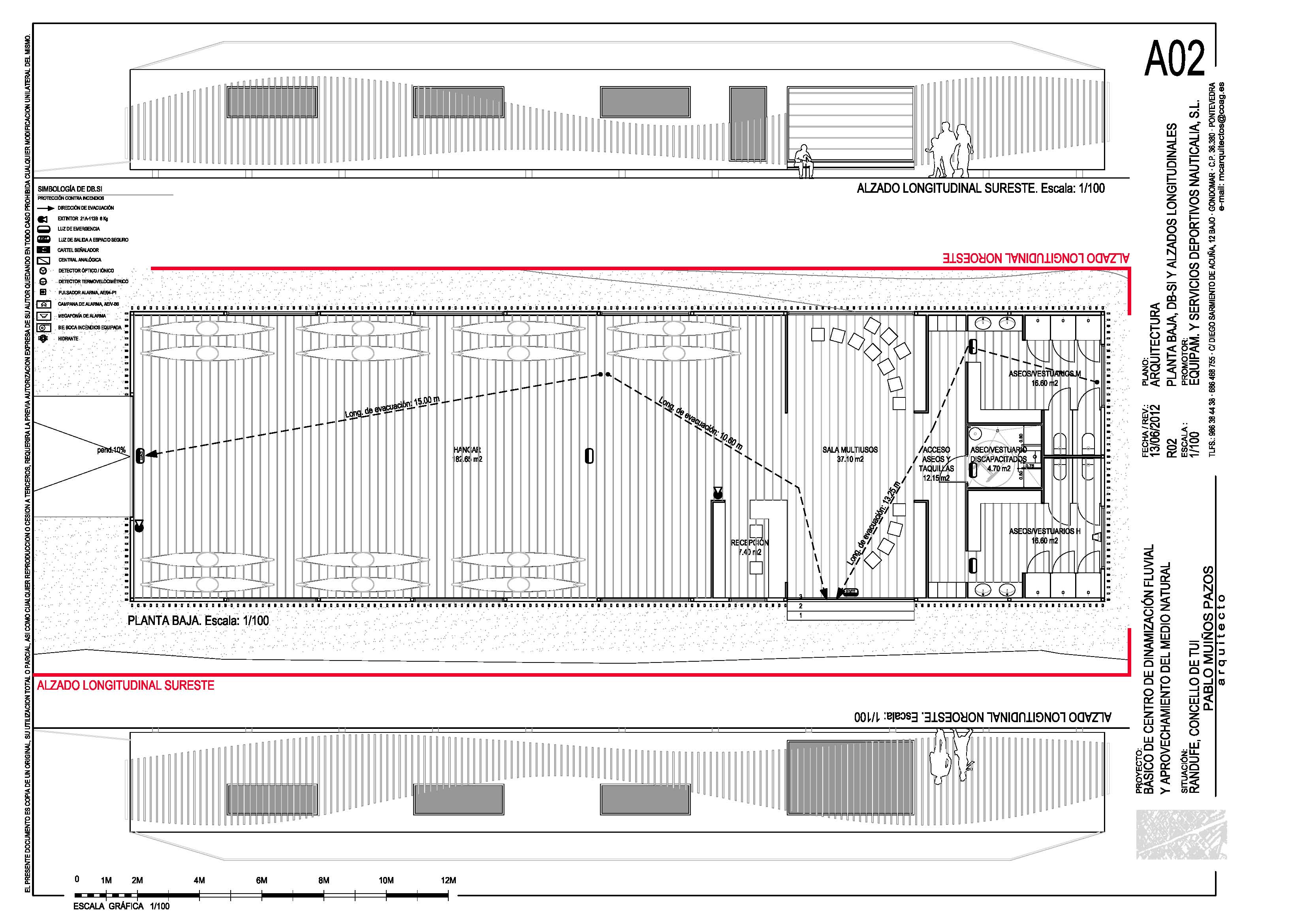
Se proyecta una construcción ligera, de mínima intervención, respetuosa con el entorno y completamente accesible.

El programa se incluye en un volumen, una caja de madera que se forra exteriormente con un rastrelado sinuoso de madera que proporciona al conjunto la movilidad propia del entorno natural vivo. Esta caja se asiente de forma separada del terreno, apoyándose puntualmente.

En el interior se distribuyen: Un espacio central de recepción e información, a la derecha la zona de baños/vestuarios y a la izquierda el hangar y una oficina.

El acceso a esta caja de madera se realiza a través de una escalera exterior y de una rampa de madera.

Se trata de una instalación ecológica y mediambientalmente sostenible, un espacio de sensibilización sobre los aspectos medioambientales y climáticos que nos rodean y nos afectan. Los contenidos didácticos del proyecto lo avalan y la trayectoria de la empresa promotora garantiza la rentabilidad del proyecto y por tanto su viabilidad.

  • Información
  • Autoría

    Clasificación / Tipología

    Edificación

    Ubicación

    Randufe
    36700 Tui
    PONTEVEDRA | ESPAÑA

    Otra información

    Fecha Terminación: Junio 2012

    Agentes

    Fotografía: PABLO MUIÑOS PAZOS

    Promotor: EQUIPAMIENTOS Y SERVICIOS DEPORTIVOS NAUTICALIA, S

Galería realización

0 comentarios


No hay comentarios ni valoraciones para este producto.
¡Sé el primero en comentar y valorar!