arrow-circle-down arrow-circle-left arrow-circle-up arrow-down arrow-left arrow-line-right arrow-right arrow-up ballon close facebook filter glass lock menu phone play point q question search target twitter
X
  • PORTFOLIO / Casal de Barrio

    BARCELONA

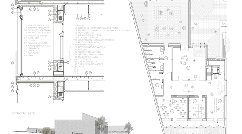
ARQ Sostenible _ Casal de Barrio en Trinintat Nova

Se trata de un edificio público que cumple con los estándares y necesidades de un edificio sostenible y de eficiencia energética.

 

La orientación del edificio se base en función de los espacios requeridos por el programa y las necesidades de estos espacios. Estas necesidades y requerimientos también influyen en las fachadas. Puesto que cada fachada tiene una función diferente, ya sea para evitar pérdidas térmicas, de captador solar o evitar la entrada de asoleo molesto.

Los espacios interiores se organizan para conseguir la máxima conexión visual, evitando generar pasillos oscuros o zonas sin iluminación natural.

Se crea un núcleo principal que además de funcionar como un recibidor o incluso espacio de reunión, ordena los espacios anexos a él. Con su doble altura y los “muros” de separación de vidrio, conecta la planta primera y la planta baja. Y con los grandes ventanales, tanto al sur como al norte, permite una constante entrada de iluminación natural.

Se crea un patio interior, que además de dotar el edificio con iluminación natural, permite que el edificio obtenga ciertas características que ayudan a la estrategia bioclimática.

  • Premios y distinciones
  • Proyecto Final de Carrera

PORTFOLIO / Casal de barrio

0 comentarios


No hay comentarios ni valoraciones para este producto.
¡Sé el primero en comentar y valorar!