arrow-circle-down arrow-circle-left arrow-circle-up arrow-down arrow-left arrow-line-right arrow-right arrow-up ballon close facebook filter glass lock menu phone play point q question search target twitter
X
  • Estados de Ánimo

    Chamberí, Madrid.
  • Estados de Ánimo

    Chamberí, Madrid.
  • Estados de Ánimo

    Chamberí, Madrid.
  • Estados de Ánimo

    Chamberí, Madrid.
  • Estados de Ánimo

    Chamberí, Madrid.
  • Estados de Ánimo

    Chamberí, Madrid.
  • Estados de Ánimo

    Chamberí, Madrid.
  • Estados de Ánimo

    Chamberí, Madrid.
  • Estados de Ánimo

    Chamberí, Madrid.
  • Estados de Ánimo

    Chamberí, Madrid.
  • Estados de Ánimo

    Chamberí, Madrid.
  • Estados de Ánimo

    Chamberí, Madrid.
  • Estados de Ánimo

    Chamberí, Madrid.
  • Estados de Ánimo

    Chamberí, Madrid.

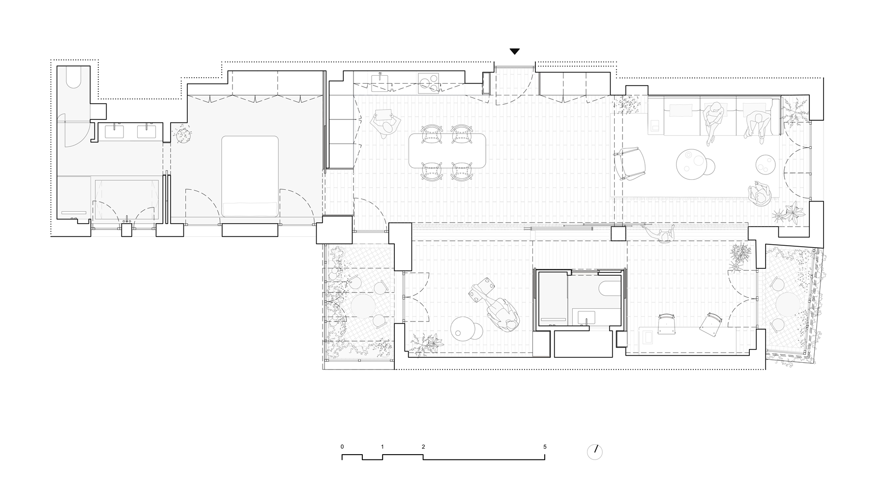
El cambio como premisa, la transformación como programa y aire para deambular, eran las peticiones que definían el encargo para la reforma de esta casa.

El programa se presenta como una oportunidad para abordar el proyecto de modo experimental sobre la capacidad transformadora de un lugar, acompañando en los cambios y estados de ánimo.

 

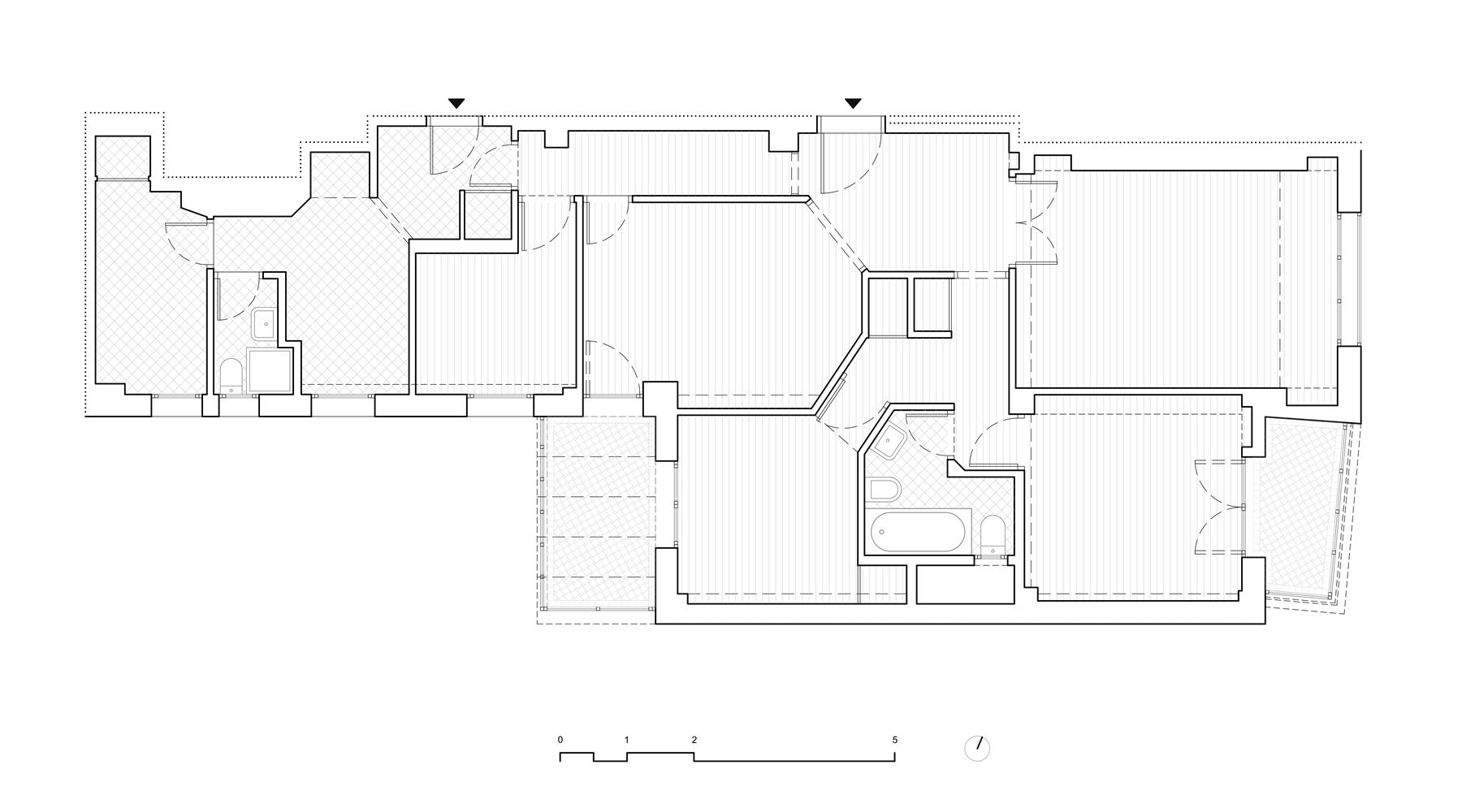
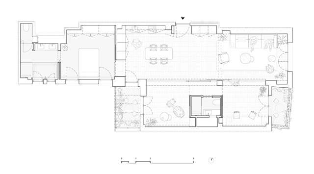
Inicialmente el espacio, alargado y con estrecha crujía, se presenta muy fragmentado con estancias oscuras y pequeñas. El objetivo es diseñar un único espacio abierto, y un espacio cerrado como base para las siguientes transformaciones. 

El proyecto utiliza 3 estrategias de diseño para generar este nuevo espacio. En primer lugar, se ubica el equipamiento estático necesario como elemento distribuidor de la vivienda, dividiendo así el espacio en dos zonas (espacio abierto / espacio cerrado). 

En segundo lugar, se proyecta un filtro como elemento dinámico para posibilitar la transformación del espacio abierto. Estos elementos de posición flexible configuran nuevos espacios dando lugar a nueva distribución equilibrada.

Por último, los umbrales de la vivienda hacia el exterior se tratan como terrazas en verano o jardines de invierno, según la época del año, y enriqueciendo así los posibles usos del espacio interior.

 

El proyecto resultante es un espacio amplio, abierto y flexible, con vistas cruzadas que recibe luz de diferentes orientaciones, y un espacio cerrado, a modo de cápsula, mucho más íntimo y acogedor. Se produce así también una inversión de la distribución tradicional de la vivienda donde la zona de servicio se ubicaba en la zona más interior. En la distribución actual las antiguas zonas de servicio se traspasan a la zona principal, en una posición más alineada con el uso de las mismas. 

 

Los materiales y acabados han sido claves en la propuesta ya que acompañan a estas estrategias de proyecto. Se ha mantenido el suelo de pino melis existente en todo el espacio común, subrayando el carácter abierto y continuo de esta zona. Por el contrario, en las zonas donde no existía este pavimento, se decidió no recrearlo y utilizar un revestimiento continuo de micro-resina de aplicación manual. Este cambio de material refuerza la sensación de cápsula del espacio cerrado, creando una atmósfera cálida y acogedora. Los elementos estáticos aparecen fuertemente presentes en madera natural y lacada. Los puntos en los que se traspasa este muro de equipamiento (acceso principal y acceso al espacio cerrado) se marcan con embocaduras de madera natural, enfatizando así el tránsito entre uno y otro espacio.

 

La vivienda admite diversas opciones de ser habitada en función de las necesidades, los deseos, o los cambios en los estados de ánimo.

  • Información
  • Autoría

    Clasificación / Tipología

    Rehabilitación
    Reforma
    Interiorismo

    Ubicación

    Chamberí, Madrid.

    Otra información

    Fecha Inicio: Mayo 2021
    Fecha Terminación: Setiembre 2021
    Superficie construída: 100 m2

    Agentes

    Fotografía: Montse Zamorano

    Promotor: OR

Imágenes

Planos

0 comentarios


No hay comentarios ni valoraciones para este producto.
¡Sé el primero en comentar y valorar!