arrow-circle-down arrow-circle-left arrow-circle-up arrow-down arrow-left arrow-line-right arrow-right arrow-up ballon close facebook filter glass lock menu phone play point q question search target twitter
X
  • Casa Moratiel

    BARCELONA. ESPAÑA
  • Casa Moratiel

    BARCELONA. ESPAÑA
  • Casa Moratiel

    BARCELONA. ESPAÑA
  • Casa Moratiel

    BARCELONA. ESPAÑA

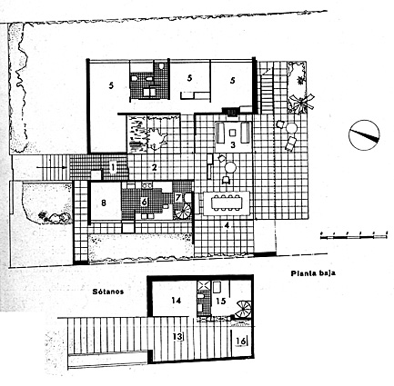
Vivienda unifamiliar aislada situada en la urbanización Ciudad Diagonal, muy cerca de la casa Iranzo. Se desarrolla principalmente en planta baja, con algunos anexos en la cubierta y un sótano para el garaje. La distribución de la planta se organiza en tres partes, alrededor de un patio de vidrio ajardinado que aumenta la sensación de transparencia y de integración con la naturaleza. Cada una de las tres zonas funcionales de la casa se abre a una parte diferenciada del jardín, para conseguir un mayor grado de privacidad. La fachada de acceso es completamente opaca y tiene una componente cromática muy importante, en la que dominan el rojo y el blanco. Desde la puerta de entrada se puede ver a través de toda la casa hasta el jardín posterior. Observando la terraza de la cubierta, que sigue uno de los cinco puntos de Le Corbusier, se puede advertir su influencia. Sostres fue uno de los miembros destacados del Grupo R (revisión, recuperación o rescate del movimiento moderno), y esta obra fue uno de sus intentos más radicales por recuperar los principios de la arquitectura moderna en la España de después de la autarquía. La estructura de la casa está concebida como una trama uniforme de pilares de acero que soportan una losa de hormigón, pero, se entiende como una serie de muros exentos, con algunos pilares estratégicamente situados. Cada detalle constructivo del edificio está resuelto con gran precisión, como si fuera una obra de arte. [Xavier Llobet Ribeiro]

  • Información
  • Autoría

    Sostres, Josep Maria (1915-1984)

    Denominación original

    Casa Moratiel

    Denominación actual

    -

    Cronología

    Año de inicio: 1955
    Año finalización: 1958

    Uso original

    Vivienda / vivienda unifamiliar

    Ubicación

    Calle Apel•les Mestres, 19
    08950 | Esplugues de Llobregat
    BARCELONA | ESPAÑA

Galería fotográfica

0 comentarios


No hay comentarios ni valoraciones para este producto.
¡Sé el primero en comentar y valorar!