arrow-circle-down arrow-circle-left arrow-circle-up arrow-down arrow-left arrow-line-right arrow-right arrow-up ballon close facebook filter glass lock menu phone play point q question search target twitter
X
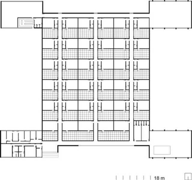
  • Colegio de Educación Especial Saladino Cortizo

    PONTEVEDRA. ESPAÑA
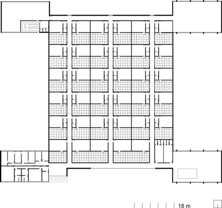
  • Colegio de Educación Especial Saladino Cortizo

    PONTEVEDRA. ESPAÑA
  • Colegio de Educación Especial Saladino Cortizo

    PONTEVEDRA. ESPAÑA
  • Colegio de Educación Especial Saladino Cortizo

    PONTEVEDRA. ESPAÑA
  • Información
  • Autoría

     Desiderio Pernas Martínez 

    Denominación original

    Colegio de Educación Especial Saladino Cortizo

    Denominación actual

    Centro Privado de Educación Especial Saladino Cortizo

    Cronología

    Año de inicio: 1965
    Año finalización: 1968

    Uso original

    Uso docente / centro de enseñanza primaria/instituto

    Ubicación

    Calle de Carballal, 60
    36318 | Vigo
    PONTEVEDRA | ESPAÑA

Galería fotográfica

0 comentarios


No hay comentarios ni valoraciones para este producto.
¡Sé el primero en comentar y valorar!