arrow-circle-down arrow-circle-left arrow-circle-up arrow-down arrow-left arrow-line-right arrow-right arrow-up ballon close facebook filter glass lock menu phone play point q question search target twitter
X
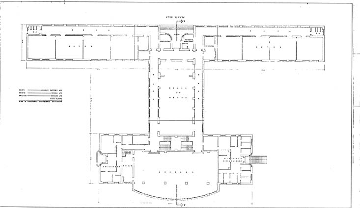
  • Colegio de Huérfanos de Ferroviarios

    MÁLAGA. ESPAÑA
  • Colegio de Huérfanos de Ferroviarios

    MÁLAGA. ESPAÑA
  • Colegio de Huérfanos de Ferroviarios

    MÁLAGA. ESPAÑA
  • Colegio de Huérfanos de Ferroviarios

    MÁLAGA. ESPAÑA
  • Información
  • Autoría

    Alonso Martos, Francisco

    Denominación original

    Colegio de Huérfanos de Ferroviarios

    Denominación actual

    Centro Cultural Pablo Ruiz Picaso

    Cronología

    Año de inicio: 1933
    Año finalización: 1935

    Uso original

    Uso docente / centro de enseñanza primaria/instituto

    Ubicación

    Calle de la Cruz 
    29620 | Torremolinos
    MÁLAGA | ESPAÑA

Galería fotográfica

0 comentarios


No hay comentarios ni valoraciones para este producto.
¡Sé el primero en comentar y valorar!