arrow-circle-down arrow-circle-left arrow-circle-up arrow-down arrow-left arrow-line-right arrow-right arrow-up ballon close facebook filter glass lock menu phone play point q question search target twitter
X
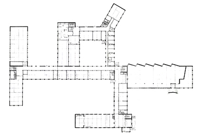
  • Colegio de los Holandeses

    BURGOS. ESPAÑA
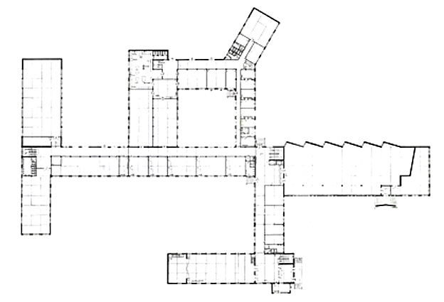
  • Colegio de los Holandeses

    BURGOS. ESPAÑA
  • Colegio de los Holandeses

    BURGOS. ESPAÑA
  • Colegio de los Holandeses

    BURGOS. ESPAÑA
  • Información
  • Autoría

    Gil-Albarellos de las Rivas

    Denominación original

    Colegio de los Holandeses

    Denominación actual

    Instituto Técnico de Miranda

    Cronología

    Año de inicio: 1964
    Año finalización: 1967 

    Uso original

    Uso docente / centro de enseñanza primaria/instituto

    Ubicación

    Calle Barriada El Crucero
    09200 | Miranda de Ebro 
    BURGOS | ESPAÑA

Galería fotográfica

0 comentarios


No hay comentarios ni valoraciones para este producto.
¡Sé el primero en comentar y valorar!