arrow-circle-down arrow-circle-left arrow-circle-up arrow-down arrow-left arrow-line-right arrow-right arrow-up ballon close facebook filter glass lock menu phone play point q question search target twitter
X
  • Colegio Nuestra Señora del Pilar

    MADRID. ESPAÑA
  • Colegio Nuestra Señora del Pilar

    MADRID. ESPAÑA
  • Colegio Nuestra Señora del Pilar

    MADRID. ESPAÑA
  • Colegio Nuestra Señora del Pilar

    MADRID. ESPAÑA
  • Información
  • Autoría

    Moya Blanco, Luis (1904-1990)
    Domínguez Salazar, José Antonio

    Denominación original

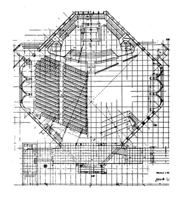
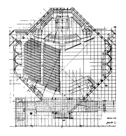
    Colegio Nuestra Señora del Pilar

    Denominación actual

    Colegio e Iglesia parroquial de Santa María del Pilar. Padres Marianistas

    Cronología

    Año de inicio: 1956 
    Año finalización: 1973 

    Uso original

    Uso docente / centro de enseñanza primaria/instituto

    Ubicación

    Calle Reyes Magos , 1-3 
    28009 | MADRID
    MADRID | ESPAÑA

Galería fotográfica

0 comentarios


No hay comentarios ni valoraciones para este producto.
¡Sé el primero en comentar y valorar!