arrow-circle-down arrow-circle-left arrow-circle-up arrow-down arrow-left arrow-line-right arrow-right arrow-up ballon close facebook filter glass lock menu phone play point q question search target twitter
X
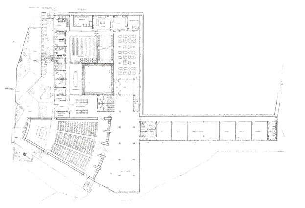
  • Colegio Nuestra Señora de la Paz

    CANTABRIA. ESPAÑA
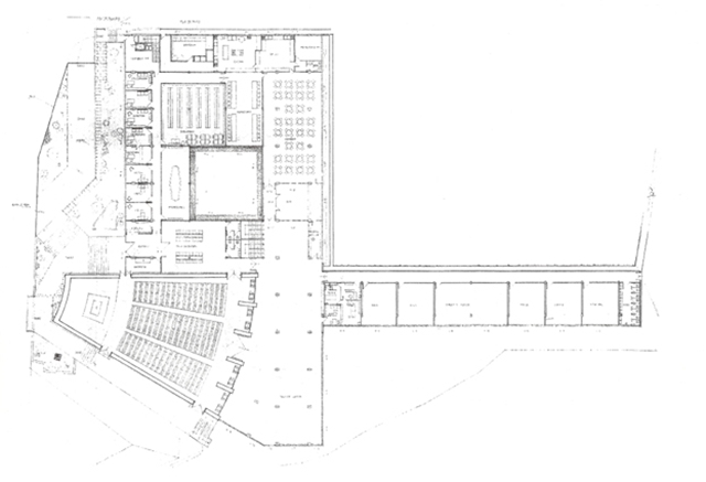
  • Colegio Nuestra Señora de la Paz

    CANTABRIA. ESPAÑA
  • Colegio Nuestra Señora de la Paz

    CANTABRIA. ESPAÑA
  • Colegio Nuestra Señora de la Paz

    CANTABRIA. ESPAÑA
  • Información
  • Autoría

    Coello de Portugal Acuña, Francisco (1926-2013)
    Subirachs, Josep Maria (1927-2014)
    Elementos escultóricosSubirachs, Josep Maria (1927-2014)
    Elementos escultóricos

    Denominación original

    Colegio Nuestra Señora de la Paz

    Denominación actual

    -

    Cronología

    Año de inicio: 1965
    Año finalización: 1968

    Uso original

    Uso docente / centro de enseñanza primaria/instituto

    Ubicación

    Calle Padre Damián, 26
    39300 | Torrelavega
    CANTABRIA | ESPAÑA

Galería fotográfica

0 comentarios


No hay comentarios ni valoraciones para este producto.
¡Sé el primero en comentar y valorar!