arrow-circle-down arrow-circle-left arrow-circle-up arrow-down arrow-left arrow-line-right arrow-right arrow-up ballon close facebook filter glass lock menu phone play point q question search target twitter
X
  • Centro Social Trinitat Nova

    BARCELONA. ESPAÑA
  • Centro Social Trinitat Nova

    BARCELONA. ESPAÑA
  • Centro Social Trinitat Nova

    BARCELONA. ESPAÑA
  • Centro Social Trinitat Nova

    BARCELONA. ESPAÑA
  • Centro Social Trinitat Nova

    BARCELONA. ESPAÑA
  • Centro Social Trinitat Nova

    BARCELONA. ESPAÑA
  • Centro Social Trinitat Nova

    BARCELONA. ESPAÑA
  • Centro Social Trinitat Nova

    BARCELONA. ESPAÑA
  • Centro Social Trinitat Nova

    BARCELONA. ESPAÑA
  • Centro Social Trinitat Nova

    BARCELONA. ESPAÑA
  • Centro Social Trinitat Nova

    BARCELONA. ESPAÑA
  • Centro Social Trinitat Nova

    BARCELONA. ESPAÑA
  • Centro Social Trinitat Nova

    BARCELONA. ESPAÑA
  • Centro Social Trinitat Nova

    BARCELONA. ESPAÑA
  • Centro Social Trinitat Nova

    BARCELONA. ESPAÑA
  • Centro Social Trinitat Nova

    BARCELONA. ESPAÑA
  • Centro Social Trinitat Nova

    BARCELONA. ESPAÑA
  • Centro Social Trinitat Nova

    BARCELONA. ESPAÑA

El edificio emerge de la urbanización, aprovechando la topografía en desnivel de la calle y genera una nueva plaza mirador al final del recorrido del paseo, respetando las vistas hacia la Casa de l‘Aigua.
El edificio se mimetiza con el lugar usando los mismos materiales y técnicas constructivas usadas en la urbanización y busca la máxima integración y respeto por el espacio existente y trata de no perturbar la calma a su alrededor, un entorno en el límite de la ciudad.

La Plaza cívica y sus cubiertas se convierten así en extensiones naturales de los espacios de actividad del Casal a la vez que hacen de mirador hacia el paisaje del parque de Collserola.
El espacio interior se ilumina de manera cenital a través de lucernarios perimetrales que emergen a la superficie en forma de bancos y jardineras.
El volumen del bar y la sala polivalente a doble altura es el único volumen reconocible desde cota superior.
La entrada principal se realiza por la cota inferior con un gran espacio vestíbulo que conecta todos los demás espacios: dos salas taller divisibles en cuatro con paneles móviles acústicos, un taller de cocina y dos bucs de ensayo musical.
La sala de actos es un espacio segregable al que se puede acceder de manera independiente.
Se trata de un edificio de uso versátil pensado para funcionar con un modelo de autogestión.

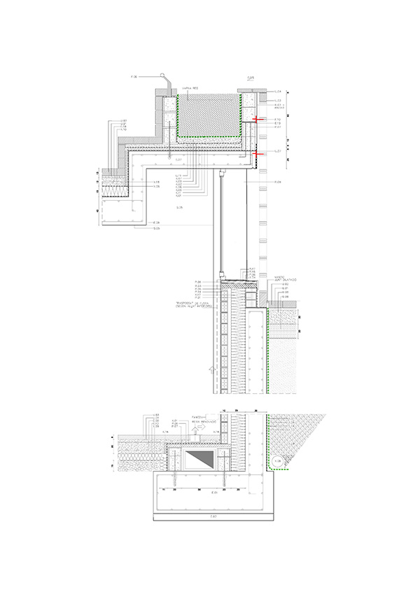
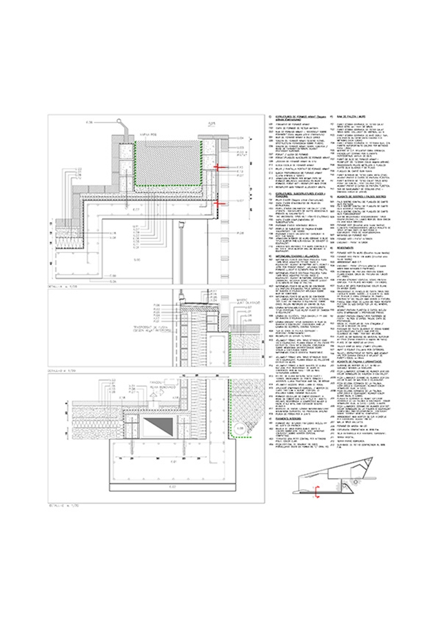
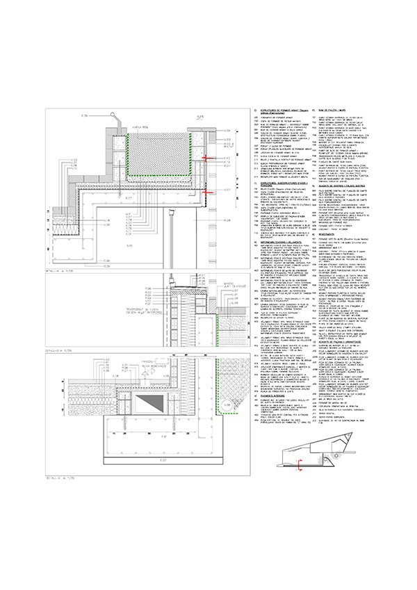
CERÁMICA: CONTINUIDAD Y LUZ / La homogeneidad del material cerámico para las fachadas de todo el edificio se convierte en celosía en las ventanas, generando un volumen abstracto y silencioso.
Las celosías garantizan la entrada de luz natural asegurando un cerramiento seguro y antivandálico, protegen de la radiación solar en verano y mejoran el comportamiento climático. Los efectos cambiantes de la luz solar aportan matices visuales y ambientales. La iluminación interior del edificio convierte el conjunto de noche en una gran linterna.
La pieza clínker del exterior reviste tanto suelos como fachadas dejando una cámara de aire con unos 25 cm de aislamiento de tejido reciclado natural.
Las ventanas y balconeras son de madera de pino de Flandes acabado con lasur.
La cerámica se usa también para crear paredes absorbentes que contribuyen a mejorar el comportamiento acústico de las salas docentes reduciendo el efecto de reverberación.

ESTRUCTURA / Los muros perimetrales de hormigón armado y pilares metálicos en el interior sustentan una gran losa inclinada de hormigón de 40 cm.
El forjado de la sala polivalente es de losas alveolares de luces superiores a los 7 m.
SOSTENIBILIDAD Y EFICIENCIA ENERGÉTICA / El edificio obtiene una calificación energética A reduciendo la demanda energética habitual para edificios de su mismo uso.
Medidas pasivas: El edifico semienterrado reduce la superficie de exposición interior/exterior del perímetro, reduciendo las pérdidas energéticas y aprovechando la inercia térmica del terreno como aislante natural.
El diseño de una envolvente estanca con grosores significativos de aislante perimetral contribuye al buen comportamiento térmico del volumen interior. Las celosías cerámicas evitan la radiación solar directa que penaliza el comportamiento climático del edificio en verano.
Optimización del sistema de climatización.
El edificio incorpora un sistema de producción de geotermia con un total de 14 pozos a 140 m de profundidad y recuperadores de aire en el sistema de renovación junto con un campo de placas fotovoltaicas en cubierta.

Fabricante de ladrillo: La Paloma Cerámicas

Más información en XV Premio de Arquitectura de Ladrillo IV Premio de Arquitectura Cerámica

  • Información
  • Autoría

    Bayona Valero Arquitectes Associats
    Cantallops Vicente Arquitectes
    Bayona, Marta
    Cantallops Dalmau, Lluís
    Valero Cabré, Albert
    Vicente Carrió, Marta

    Denominación original

    Centro Social Trinitat Nova

    Denominación actual

    -

    Cronología

    Año finalización: 2018

    Uso original

    -

    Ubicación

    Calle Calle de Garbí, 3
    8033 | Trinitat Nova
    BARCELONA | ESPAÑA

    Agentes

    Colaboradores: Cherchi, Federico
    Gelabert, Jaume

    Estructuras: Olmo Gómez, María del
    Ossio, Anahi
    Salvador Culla, Javier

    Fotografía: Surroca, Jordi

  • Premios y distinciones
  • Ganador XV Premio de Arquitectura de Ladrillo Hispalyt, Premio en la categoría de edificios no residenciales en el COAC 2018-2019 Mostra d’Arquitectura catalana, Finalistas del premio FAD ARQUITECTURA 2019, Premio FAD OPINIÓ 2019 y Primer puesto y premio en el concurso Internacional de Ideas de Arquitectura 2014 para el Centro Social Trinitat Nova, distrito de Nou Barris. BIMSA.(junto con Cantallops Vicente arquitectes.)

Galería fotográfica

0 comentarios


No hay comentarios ni valoraciones para este producto.
¡Sé el primero en comentar y valorar!