arrow-circle-down arrow-circle-left arrow-circle-up arrow-down arrow-left arrow-line-right arrow-right arrow-up ballon close facebook filter glass lock menu phone play point q question search target twitter
X
  • Museo de la Ciencia

    CUENCA. ESPAÑA
  • Museo de la Ciencia

    CUENCA. ESPAÑA
  • Museo de la Ciencia

    CUENCA. ESPAÑA
  • Museo de la Ciencia

    CUENCA. ESPAÑA
  • Museo de la Ciencia

    CUENCA. ESPAÑA
  • Información
  • Autoría

    Pérez Arroyo, Salvador
    Arquitecto

    Denominación original

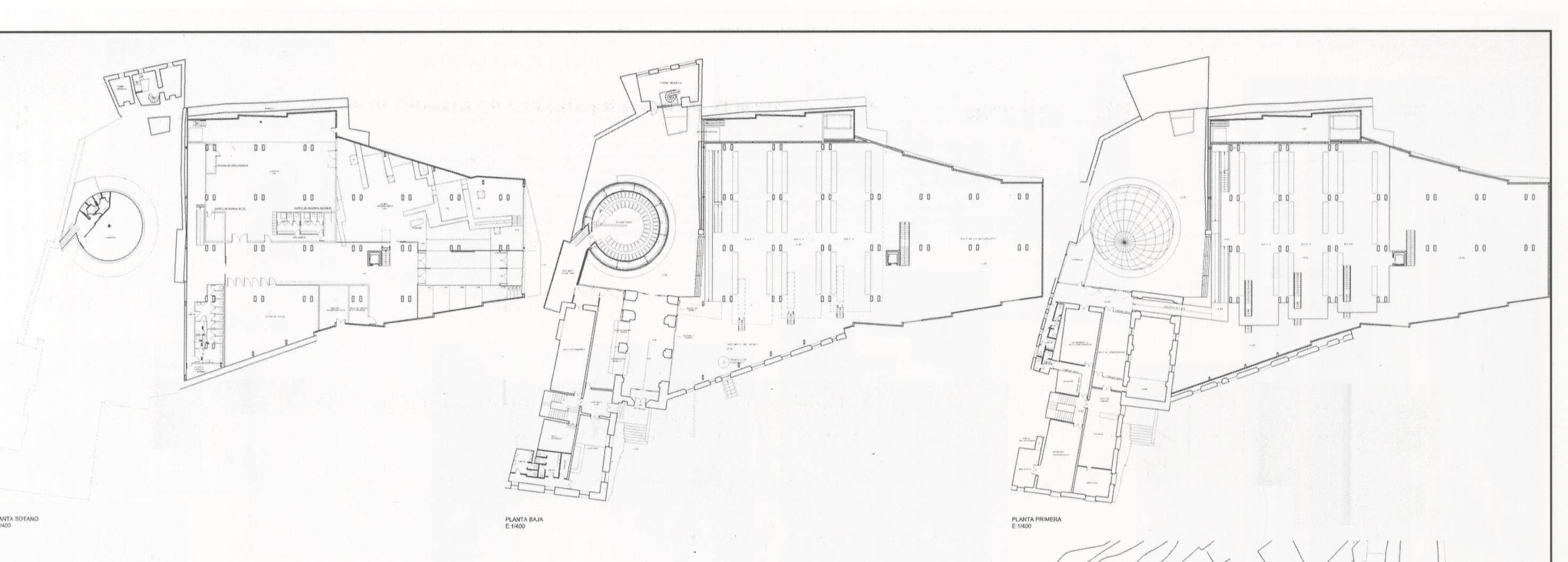
    Museo de la Ciencia

    Denominación actual

    -

    Uso original

    Uso cultural/ocio/turismo

    Ubicación

    Plaza De La Merced CUENCA | Cuenca
    CUENCA | ESPAÑA

  • Bibliografías
  • Libros Genéricos

    RIVERO José: Arquitectura del siglo XX en Castilla-La Mancha, Ciudad Real, Manifesta, 2003.
    SOLANO Javier: Arquitectura en CLM, Toledo, Junta de Comunidades, 2001.
    PERIS Diego: Arquitectura contemporánea en Castilla La Mancha 1980-1995, Toledo, Junta de Comunidades, 1999.

    Publicaciones periódicas españolas

    PERIS Diego: Arquitectura de riesgo, Añil nº 21, Madrid, 2000.
    Premios de arquitectura CLM, Toledo, Colegio de Arquitectos, 1999.
    PÉREZ ARROYO Salvador: Museo de la Ciencia en Cuenca, BAU nº 15, Valladolid, 1996.
    VV.AA: Guía de Arquitectura CLM. Arquitectos, nº 177, Madrid, 2006.

Galería fotográfica

0 comentarios


No hay comentarios ni valoraciones para este producto.
¡Sé el primero en comentar y valorar!