arrow-circle-down arrow-circle-left arrow-circle-up arrow-down arrow-left arrow-line-right arrow-right arrow-up ballon close facebook filter glass lock menu phone play point q question search target twitter
X
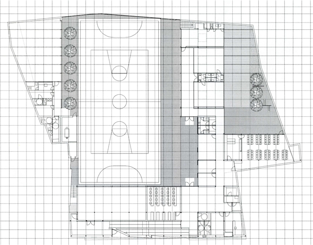
  • Colegio José Ruíz

    CIUDAD REAL. ESPAÑA
  • Colegio José Ruíz

    CIUDAD REAL. ESPAÑA
  • Colegio José Ruíz

    CIUDAD REAL. ESPAÑA
  • Información
  • Autoría

    Ramos Abengózar, José Antonio
    ArquitectoVicens Hualde, Ignacio
    Arquitecto

    Denominación original

    Colegio José Ruíz

    Denominación actual

    -

    Uso original

    Uso docente

    Ubicación

    Calle Santo Domingo 8
    CIUDAD REAL | ESPAÑA

  • Bibliografías
  • Libros Genéricos

    RIVERO José: Arquitectura del siglo XX en Castilla-La Mancha, Ciudad Real, Manifesta, 2003.
    VV.AA: Arquitectura docente en Castilla La Mancha 2000/2002, Toledo, Consejería de Educación, 2003.

    Publicaciones periódicas españolas

    S.A: Premios de arquitectura, Pasajes suplementos CLM, nº 8,Madrid, 2003.
    Premios de arquitectura CLM, Toledo, Colegio de Arquitectos, 2003.
    S.A: Colegio en Alcázar, A&V nº 93-94, Madrid, 2002.
    S.A: Centro de educación infantil y Primaria, Formas nº 4, Ciudad Real, 2003.
    VV.AA: Guía de Arquitectura CLM. Arquitectos, nº 177, Madrid, 2006.

Galería fotográfica

0 comentarios


No hay comentarios ni valoraciones para este producto.
¡Sé el primero en comentar y valorar!