arrow-circle-down arrow-circle-left arrow-circle-up arrow-down arrow-left arrow-line-right arrow-right arrow-up ballon close facebook filter glass lock menu phone play point q question search target twitter
X
  • Museo de América

    MADRID. ESPAÑA
  • Museo de América

    MADRID. ESPAÑA
  • Museo de América

    MADRID. ESPAÑA
  • Museo de América

    MADRID. ESPAÑA
  • Información
  • Autoría

    Moya Blanco, Luis
    ArquitectoMartorell Aroca, Consuelo
    ArquitectoOrtega Vidal, Javier
    ArquitectoMartínez-Feduchi Ruiz, Luis
    ArquitectoGonzález-Capitel Martínez, Antonio
    ArquitectoArmindo Hernández-Montero, Juan
    Arquitecto

    Denominación original

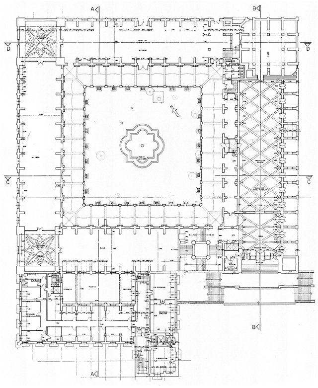
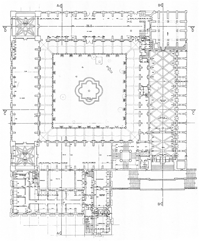
    Museo de América

    Denominación actual

    -

    Uso original

    -

    Ubicación

    Avenida Arco de la Victoria MADRID | Madrid
    MADRID | ESPAÑA

  • Bibliografías
  • FLORES, Carlos, AMANN, Eduardo: Guía de Arquitectura de Madrid. Madrid: (s.n.), 1967.
    AA.VV.: Arquitectura de Madrid. Volumen Ensanches. Madrid: Fundación del Colegio Oficial de Arquitectos de Madrid, 2003
    PIZZA, Antonio: Guía de la Arquitectura del s. XX: España. Madrid, Milán: Electa, 1997.

Galería fotográfica

0 comentarios


No hay comentarios ni valoraciones para este producto.
¡Sé el primero en comentar y valorar!