arrow-circle-down arrow-circle-left arrow-circle-up arrow-down arrow-left arrow-line-right arrow-right arrow-up ballon close facebook filter glass lock menu phone play point q question search target twitter
X
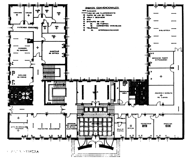
  • Instituto de Óptica Daza de Valdés

    MADRID. ESPAÑA
  • Instituto de Óptica Daza de Valdés

    MADRID. ESPAÑA
  • Instituto de Óptica Daza de Valdés

    MADRID. ESPAÑA
  • Información
  • Autoría

    Fisac Serna, Miguel
    Arquitecto

    Denominación original

    Instituto de Óptica Daza de Valdés

    Denominación actual

    Actual Centro de Física Miguel A. Catalán del CSIC

    Uso original

    -

    Ubicación

    Calle Serrano, 121 MADRID | Madrid
    MADRID | ESPAÑA

  • Bibliografías
  • AA.VV.: Equipamientos e infraestructuras culturales 1925-1965. Actas 3º Seminario DOCOMOMO Ibérico. Oporto: DOCOMOMO Ibérico, 2002.
    AA.VV.: Arquitectura de Madrid. Volumen Ensanches. Madrid: Fundación del Colegio Oficial de Arquitectos de Madrid, 2003
    PIZZA, Antonio: Guía de la Arquitectura del s. XX: España. Madrid, Milán: Electa, 1997.
    FLORES, Carlos, GÜELL, Xavier: Guía de Arquitectura de España 1929-1996. Barcelona: Fundación Caja de Arquitectos, 1996.

Galería fotográfica

0 comentarios


No hay comentarios ni valoraciones para este producto.
¡Sé el primero en comentar y valorar!