arrow-circle-down arrow-circle-left arrow-circle-up arrow-down arrow-left arrow-line-right arrow-right arrow-up ballon close facebook filter glass lock menu phone play point q question search target twitter
X
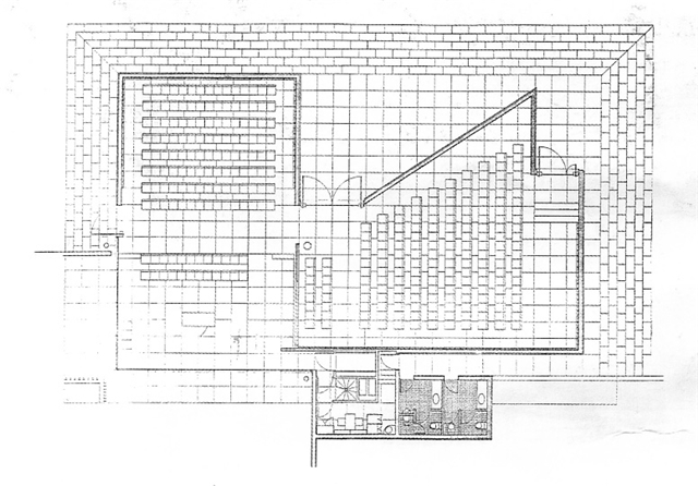
  • Capilla y Auditorio

    BARCELONA. ESPAÑA
  • Capilla y Auditorio

    BARCELONA. ESPAÑA
  • Capilla y Auditorio

    BARCELONA. ESPAÑA
  • Capilla y Auditorio

    BARCELONA. ESPAÑA
  • Capilla y Auditorio

    BARCELONA. ESPAÑA
  • Información
  • Autoría

    Rius Camps, Francesc

    Denominación original

    Capilla y Auditorio

    Denominación actual

    -

    Uso original

    -

    Ubicación

    Cementerio de Collserola BARCELONA
    BARCELONA | ESPAÑA

  • Bibliografías
  • "Capilla y auditorio del cementerio de Collserola". Barcelona: Quaderns d'Arquitectura i Urbanisme, 207-208-209, 1995, pp. 210-211

Galería fotográfica

0 comentarios


No hay comentarios ni valoraciones para este producto.
¡Sé el primero en comentar y valorar!