arrow-circle-down arrow-circle-left arrow-circle-up arrow-down arrow-left arrow-line-right arrow-right arrow-up ballon close facebook filter glass lock menu phone play point q question search target twitter
X
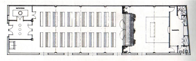
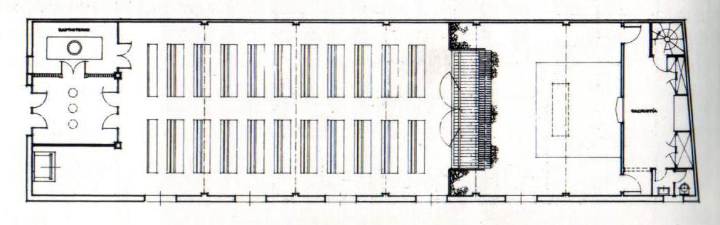
  • Iglesia parroquial de Sant Jaume

    BARCELONA. ESPAÑA
  • Iglesia parroquial de Sant Jaume

    BARCELONA. ESPAÑA
  • Iglesia parroquial de Sant Jaume

    BARCELONA. ESPAÑA
  • Iglesia parroquial de Sant Jaume

    BARCELONA. ESPAÑA
  • Información
  • Autoría

    Moragas Gallissà, Antoni de

    Denominación original

    Iglesia parroquial de Sant Jaume

    Denominación actual

    -

    Uso original

    -

    Ubicación

    Calle Marquès de Montroig, 130 BADALONA
    BARCELONA | ESPAÑA

Galería fotográfica

0 comentarios


No hay comentarios ni valoraciones para este producto.
¡Sé el primero en comentar y valorar!