arrow-circle-down arrow-circle-left arrow-circle-up arrow-down arrow-left arrow-line-right arrow-right arrow-up ballon close facebook filter glass lock menu phone play point q question search target twitter
X
  • Rehabilitación de viviendas en San Jaime. Tudela


  • Rehabilitación de viviendas en San Jaime. Tudela


  • Rehabilitación de viviendas en San Jaime. Tudela


  • Rehabilitación de viviendas en San Jaime. Tudela


Fachada norte, plaza. Fachada Sur, sol y vista del mercado y la ciudad. La conexión entre ambas vertebra la vivienda, ámbito generoso de estancia y recorrido.

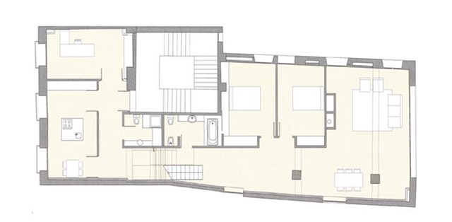
El solar objeto de proyecto es muy singular, formó parte de un antiguo palacio del cual se conserva la fachada de acceso a calle Recreo, que constituirá la fachada principal de las nuevas viviendas. La geometría del solar es muy irregular y las viviendas han de distribuirse en dos volúmenes, junto a las dos calles de acceso. Entre ambos existe el patio general de manzana, que se ajardinará para uso común. En planta baja, se genera un eje que relaciona los accesos de cada bloque a calle y al patio ajardinado de modo que desde al acceso a las viviendas será evidente la presencia del patio ajardinado y del conjunto edificado. El volumen principal, que incorpora la fachada palaciega, cuenta con escasa fachada a patio de manzana y por sus proporciones en planta, será preciso incorporar patios interiores para conseguir una adecuada ventilación e iluminación de las estancias. Se unifican los dos patios necesarios que incorporan la escalera y serán atravesados por los accesos a las viviendas. Será un espacio exterior, ajardinado en planta baja. Este gesto configura un vacío interior que podría asimilarse al patio del antiguo palacio, pero que en vez de recorrerse en su perímetro, se atraviesa generando unos pozos de luz que llegan hasta la planta baja. En las plantas elevadas, una pantalla discontinua acristalada mediante U-glass que evita las visiones directas entre viviendas. La fachada del antiguo palacio, de gran longitud aunque compartida entre varias viviendas, cuenta con dos plantas originales de sillería y dos torreones en las esquinas entre los cuales se recreció una segunda planta ya consolidada. Nuestro edificio ocupa una posición central y se ha propuesto una ordenación total de la fachada de la que nuestra intervención será la primera fase. Se pretende recuperar los huecos originales y matener el orden de huecos en la segunda planta recrecida, que se tratará con una con un material distinto para recuperar las proporciones de la fachada original.
  • Información
  • Autoría

    Clasificación / Tipología

    Restauración

    Ubicación

    PLAZA SAN JAIME, 4. TUDELA (NAVARRA)
    | ESPAÑA

    Otra información

    Fecha Terminación: Abril 2005

Galería realización

0 comentarios


No hay comentarios ni valoraciones para este producto.
¡Sé el primero en comentar y valorar!