arrow-circle-down arrow-circle-left arrow-circle-up arrow-down arrow-left arrow-line-right arrow-right arrow-up ballon close facebook filter glass lock menu phone play point q question search target twitter
X
  • Casa López

    BARCELONA. ESPAÑA
  • Casa López

    BARCELONA. ESPAÑA
  • Casa López

    BARCELONA. ESPAÑA
  • Casa López

    BARCELONA. ESPAÑA

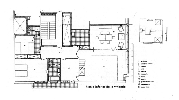
El edificio ocupa una esquina en la zona alta de Barcelona, y está formado por un total de seis viviendas dúplex, con un espacio a doble altura en la sala de estar. La elección del dúplex, que era una novedosa solución tipológica en ese momento, permitía reducir la superficie de las zonas de paso de las viviendas. Dentro del edificio encontramos todo tipo de artefactos técnicos, como tubos de recogida de basuras, ascensores con doble cabina (ascensor y montacargas), montaplatos, etc., que expresan la tendencia maquinista del edificio. Gracias a las dimensiones holgadas de las viviendas, Sert pudo explorar con gran intensidad las posibilidades expresivas del lenguaje purista de Le Corbusier, hasta el punto de que este edificio se puede considerar como uno de los más significativos de su época. En la fachada que da a la calle Muntaner se expresa la distribución interior de los dúplex, a través de la alternancia de ventanas, terrazas y balcones; en cambio, en la fachada que da a la calle Párroco Ubach, los balcones se repiten de arriba abajo. Las dos primeras crujías que dan a la calle Muntaner son de estructura metálica, las demás, de muros de carga. Los cerramientos de estuco están pintados de color gris y verde pálido (verde Bauhaus), los tubos de acero son blancos, las ventanas metálicas, de color gris oscuro, y la parte baja del edificio está revestida con paneles de vidrio, pintados por su cara interior. [Xavier Llobet Ribeiro]

  • Información
  • Autoría

    Sert, Josep Lluís (1902-1983)

    Denominación original

    Casa López

    Denominación actual

    -

    Cronología

    Año de inicio: 1929
    Año finalización: 1931

    Uso original

    Vivienda / vivienda unifamiliar

    Ubicación

    Calle Muntaner, 342-348
    08849 | Barcelona
    BARCELONA | ESPAÑA

Galería fotográfica

0 comentarios


No hay comentarios ni valoraciones para este producto.
¡Sé el primero en comentar y valorar!