arrow-circle-down arrow-circle-left arrow-circle-up arrow-down arrow-left arrow-line-right arrow-right arrow-up ballon close facebook filter glass lock menu phone play point q question search target twitter
X
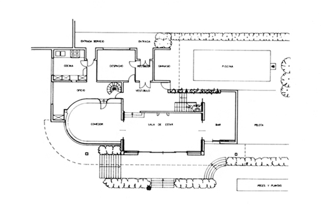
  • Casa Cervigón

    CORUÑA. ESPAÑA
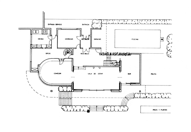
  • Casa Cervigón

    CORUÑA. ESPAÑA
  • Casa Cervigón

    CORUÑA. ESPAÑA
  • Casa Cervigón

    CORUÑA. ESPAÑA
  • Información
  • Autoría

    Tell i Novelles, Jordi (1907-1991)

    Denominación original

    Casa Cervigón

    Denominación actual

    CASA CERVIGÓN

    Cronología

    Año de inicio: 1937

    Uso original

    -

    Ubicación

    15993 | Oleiros
    CORUÑA | ESPAÑA

Galería fotográfica

0 comentarios


No hay comentarios ni valoraciones para este producto.
¡Sé el primero en comentar y valorar!