arrow-circle-down arrow-circle-left arrow-circle-up arrow-down arrow-left arrow-line-right arrow-right arrow-up ballon close facebook filter glass lock menu phone play point q question search target twitter
X
  • Editorial GUSTAVO GILI

    BARCELONA. ESPAÑA
  • Editorial GUSTAVO GILI

    BARCELONA. ESPAÑA
  • Editorial GUSTAVO GILI

    BARCELONA. ESPAÑA
  • Editorial GUSTAVO GILI

    BARCELONA. ESPAÑA
  • Editorial GUSTAVO GILI

    BARCELONA. ESPAÑA
  • Editorial GUSTAVO GILI

    BARCELONA. ESPAÑA
  • Editorial GUSTAVO GILI

    BARCELONA. ESPAÑA

Ampliación a cargo de Gustau Gili i Galfetti y Carles Bassó en 1998

 

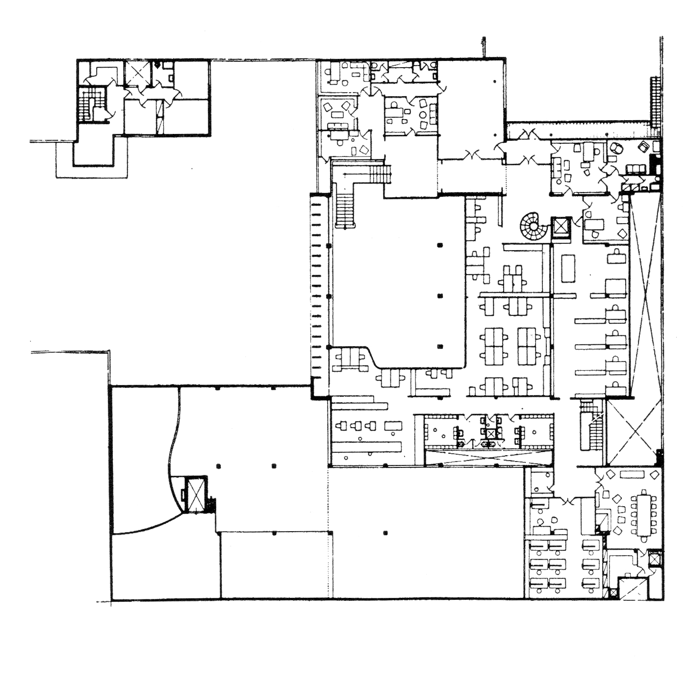
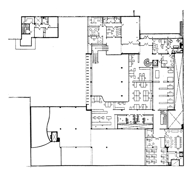
Francesc Bassó y Joaquim Gili fueron dos arquitectos pertenecientes al Grupo R y trabajaron conjuntamente para levantar la sede de la editorial Gustavo Gili. Plantearon un edificio, dividido en tres cuerpos, ubicado en el interior de una manzana del Eixample barcelonés. De esta forma, se podía entrar y girar el vehículo. Ésta fue la idea central del proyecto: un callejón sin salida en rotonda que se configurara en forma de plaza de acceso. Para conseguirlo, los tres cuerpos se dispusieron de forma que dejaban un espacio central libre donde se encabía un jardín, que hacía de espacio de comunicación entre los edificios.

En alzado, el edificio se compone de un subterráneo donde se encontraba el almacén y de dos plantas, excepto el vestíbulo del cuerpo central, en el que en un único espacio se ha creado un doble nivel, a modo de altillo-balcón , con un perfil ondulado y que da acceso a otros espacios. En ese cuerpo central se ubicaban las oficinas comerciales y técnicas. El hábito de ocupar los interiores de las islas con actividad productiva se enmarca en la tradición industrial existente desde la construcción del Eixample. Este sistema ha generado un sistema urbano compacto, de uso mixto, que combina la vivienda, el comercio y la industria y al mismo tiempo intensifica la actividad urbana.

A nivel estructural, es una de las zonas más interesantes. También es interesante cómo resuelve la fachada de este cuerpo, cómo interactúa con el jardín y permite la entrada de luz natural en el interior de forma controlada.

A nivel arquitectónico se ve una clara influencia de la arquitectura internacional. Por un lado, predomina la claridad estructural y espacial, acentuada por la gama cromática de los blancos, grises y negros, y el rojo utilizado puntualmente en los pilotes. Y por otro, la contraposición de los volúmenes geométricos y rectilíneos en el exterior con las formas curvas en el interior, con una clara ausencia de decoración aplicada.

Actualmente el edificio queda recluido dentro de una manzana, invisible desde la calle por la construcción de un edificio que cierra la manzana. Actualmente, el acceso se realiza a través de la planta baja de un edificio alineado en la calle Rosselló. Al ser transparente, permite la visión de las edificaciones interiores desde la calle. Es destacable cómo los arquitectos huyeron de la tipología existente de este tipo de edificios y propusieron un ejemplo totalmente innovador, reflejándose con las obras de Bauhaus, Le Corbusier, Mies Van der Rohe o Frank Lloyd Wright.

Por otro lado, no puede obviarse la contraposición entre la simplicidad de la volumetría exterior, con unos cuerpos proporcionados y rigurosamente estructurales, y el espacio interior dominado por elementos curvilíneos tanto en la cubierta convexa como en los elementos de separación. [Inventari del Patrimoni Arquitectònic de Catalunya]

  • Información
  • Autoría

    Bassó i Birulés, Francesc (1921-2017)
    Gili i Moros, Joaquim (1916-1984)

    Denominación original

    Editorial GUSTAVO GILI

    Denominación actual

    -

    Uso original

    -

    Ubicación

    Calle Rosselló, 87-89
    08026 BARCELONA
    BARCELONA | ESPAÑA

  • Bibliografías
  • "Edificio para una editorial en Barcelona", R.N.A. 172, 1956
    "Nuevo edificio para la editorial G. Gili", Cuadernos de Arquitectura 47,1962
    HERNÁNDEZ CROS, Josep Emili: "Joaquim Gili, in memoriam", Quaderns d'Arquitectura i Urbanisme 163,1984
    GILI GALFETTI, Gustau (ed.): Una arquitectura para la edición. Editorial Gustavo Gili S.A., Barcelona: G. Gili, 1996
    GARCÍA VERGARA, M.; NISIVOCCIA, E.: "J. Gili, F. Bassó y la editorial G. Gili en Barcelona" en POZO, Manuel (ed.), Los brillantes 50. 35 proyectos. Pamplona: T6 Ediciones, 2004

Galería fotográfica

0 comentarios


No hay comentarios ni valoraciones para este producto.
¡Sé el primero en comentar y valorar!