arrow-circle-down arrow-circle-left arrow-circle-up arrow-down arrow-left arrow-line-right arrow-right arrow-up ballon close facebook filter glass lock menu phone play point q question search target twitter
X

Molins de Rei | obra en curso | primer premio en concurso de 2022


1. Origen del encargo y vocación pública

El proyecto nace de un concurso público impulsado por el IMPSOL para desarrollar 35 viviendas de alquiler social destinadas a familias en Molins de Rei, dentro del área metropolitana de Barcelona.

El encargo planteaba un doble reto: responder a las exigencias normativas de la vivienda protegida —destinando una cuarta parte a tres dormitorios y el resto a dos— e incorporar criterios ambiciosos de sostenibilidad, eficiencia energética y calidad espacial.

La propuesta asume esta responsabilidad entendiendo la vivienda social no como un estándar mínimo, sino como una oportunidad para investigar nuevas formas de habitar, más flexibles, comunitarias y ambientalmente responsables.

2. Encaje urbano y condición metropolitana
La torre se sitúa en un ámbito de desarrollo urbano al pie de la Sierra de Collserola y frente a la línea ferroviaria. Se implanta sobre una topografía en pendiente y se gira ligeramente respecto a las edificaciones colindantes, reforzando su singularidad y su condición de hito.

Visible desde la avenida de la Mancomunitat y desde el trazado ferroviario, el edificio consolida su presencia en un paisaje infraestructural de gran escala.

La planta baja activa el espacio público mediante un local comercial y un aparcamiento de bicicletas abierto también al barrio. La urbanización perimetral se concibe como espacio verde de transición con especies autóctonas de bajo consumo hídrico.

3. Comunidad y espacios compartidos
El proyecto refuerza la dimensión comunitaria de la vivienda colectiva mediante espacios distribuidos estratégicamente:

- Espacio polivalente en planta primera con acceso directo a los jardines.
- Lavandería comunitaria en cubierta vinculada a una gran terraza común protegida por una pérgola fotovoltaica.
- Aparcamiento de bicicletas en planta baja.

La cubierta incorpora jardineras perimetrales con especies arbustivas seleccionadas, extendiendo la vegetación hasta la cota más alta y fomentando la biodiversidad.

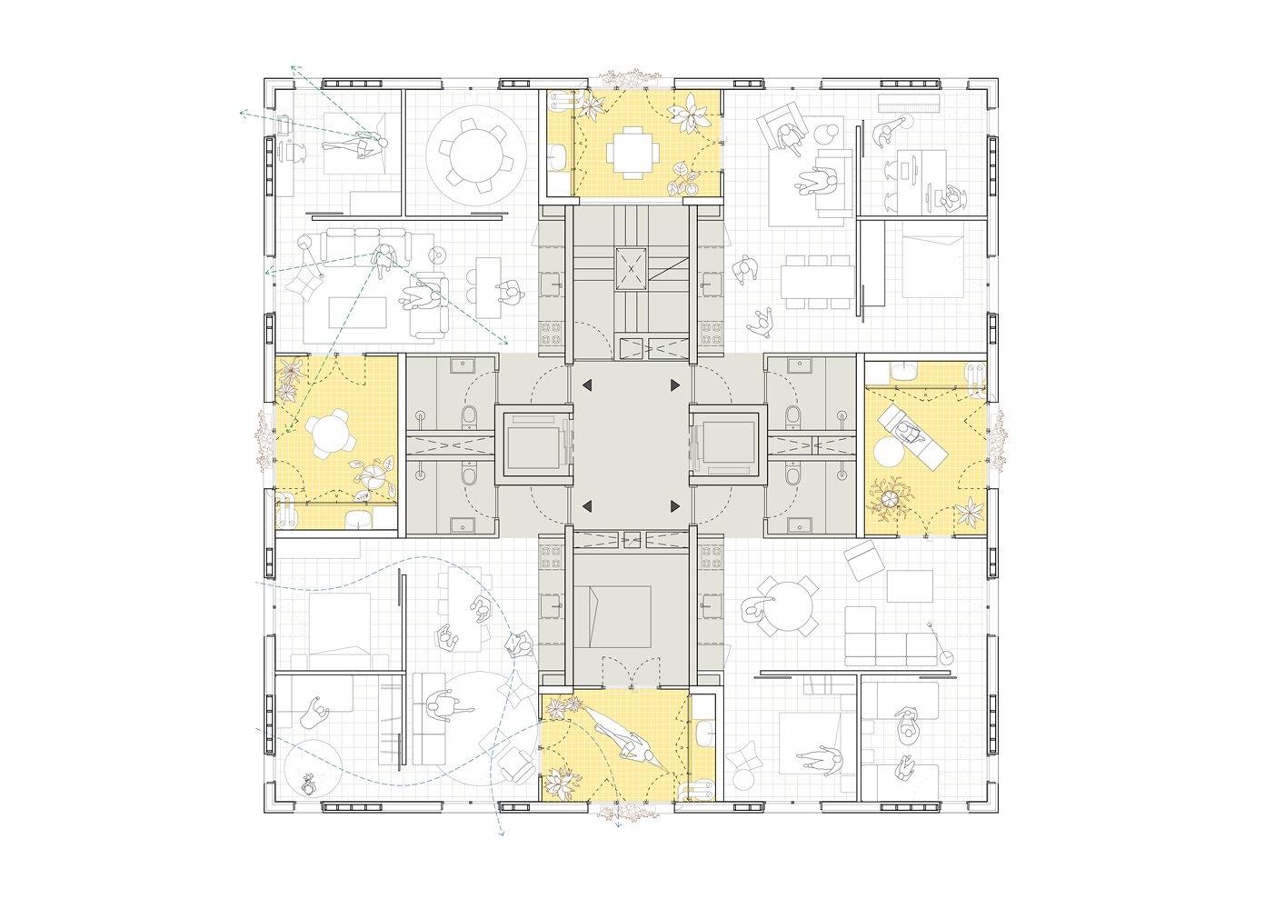
4. Tipología y desjerarquización doméstica
La planta, inscrita en un cuadrado de 18 x 18 metros, se organiza mediante una cruz central que articula cuatro viviendas por nivel.

La distribución responde a una estrategia de desjerarquización: no existe habitación principal predeterminada, se eliminan pasillos y espacios residuales y toda la superficie es realmente habitable. La configuración en forma de esvástica garantiza orientaciones y vistas diferenciadas, favoreciendo la ventilación cruzada y la calidad ambiental.

5. La cruz distributiva y el programa
La exigencia de combinar viviendas de dos y tres dormitorios se resuelve mediante la posición asimétrica del núcleo de comunicaciones dentro de la cruz central. La escalera desplazada genera una geometría variable que, junto con la disposición estratégica de las galerías, permite incorporar una tercera habitación en una vivienda por planta, garantizando iluminación y ventilación natural.

6. Galerías como espacio bioclimático
Las galerías semiexteriores, vinculadas a la sala de estar, funcionan en verano como terraza protegida y en invierno como invernadero solar. Actúan como colchón térmico, regulando las condiciones interiores y aportando resiliencia climática.

7. Sostenibilidad pasiva y eficiencia energética
La estrategia ambiental se basa en decisiones pasivas: orientación adecuada, ventilación cruzada, control de superficies vidriadas, envolvente altamente aislada y elevada inercia térmica gracias al núcleo de hormigón.

Las viviendas no requieren sistemas activos convencionales de calefacción o refrigeración, más allá de una preinstalación futura, reduciendo consumo y mantenimiento.

8. Sistema estructural híbrido
La estructura combina un núcleo central de hormigón armado ejecutado con encofrado trepante y una estructura perimetral ligera de madera. Los forjados y muros de paneles CLT independizan estructuralmente cada vivienda y mejoran el aislamiento acústico. Las tres últimas plantas se resuelven con entramado ligero de madera para reducir peso y optimizar costes.

9. Reducción del impacto ambiental
Un estudio comparativo de emisiones de CO₂ frente a un edificio convencional demostró que la estructura mixta madera–hormigón reduce el impacto ambiental en más de un 40% en kg de CO₂ por m² construido.

10. Paisaje y biodiversidad
Las áreas libres se ajardinan con especies autóctonas de bajo consumo hídrico. En cubierta, la terraza comunitaria bajo la pérgola fotovoltaica se acompaña de jardineras perimetrales con vegetación arbustiva, fomentando la biodiversidad en altura.

  • Información
  • Autoría

    Clasificación / Tipología

    Edificación

    Ubicación

    Avenida de la Mancomunitat, 24 | 08750, Molins de Rei, Barcelona, Catalunya | ESPAÑA

    Otra información

    Fecha Inicio: Octubre 2021
    Superficie construída: 3240
    Coste/m2: 1200

    Agentes

    Acústica: Soundwitch project

    Arquitectos técnicos: Arrevolt

    Colaboradores: Societat orgànica (sostenibilitat)

    Constructor: Arcadi Pla S.A.

    Estructuras: M103

    Fotografía: Adriana Eskenazy (maqueta)
    José Hevia (obra)

    Ingeniería: L3J

    Promotor: IMPSOL (Institut Metropolità del Sol) AMB

  • Premios y distinciones
  • 2023 – Exhibition  «Nameless models» for the opening of Casa de la Arquitectura, Madrid. Curated by Post Like.

    2023 – Lecture «Time and eye» at ETSAB-UPC, course leaded by Mendoza Partida.

    2023 – Exhibition «Nameless models», within the 1st AJAC Biennale at COAC Barcelona, organized by Biennal AJAC. 

    2023 – Lecture and round table «Habitatge social en context post-pandèmic» at Festival Model. Seven young architecture studios from Barcelona working on social housing projects.

Fotografías

Maqueta

Planos

Fotografías estructura

Imágenes

Participaciones en arquia / próxima

IX Edición 2022-2023