arrow-circle-down arrow-circle-left arrow-circle-up arrow-down arrow-left arrow-line-right arrow-right arrow-up ballon close facebook filter glass lock menu phone play point q question search target twitter
X
  • Casa Mirador


  • Casa Mirador


  • Casa Mirador


  • Casa Mirador


  • Casa Mirador


  • Casa Mirador


  • Casa Mirador


  • Casa Mirador


  • Casa Mirador


  • Casa Mirador


La vivienda se plantea como una única pieza compacta que emerge de una ladera rocosa de la sierra madrileña. Suspendida sobre una estructura metálica mínima, la vivienda se asoma al paisaje para capturarlo en su interior. Su presencia es sobria y contenida, como una caja que se posada sobre el terreno granítico apenas sin alterarlo.

El interior se entiende como un refugio desde el que mirar. Cada ventana enmarca una vista distinta, transformada por las estaciones y la luz cambiante del día. La casa es, en esencia, un instrumento para contemplar, donde el habitar se confunde con la experiencia de observar.

 

Ubicada en una parcela alejada y con una topografía accidentada, la vivienda debía resolver dos condicionantes principales: ajustarse a un presupuesto reducido y levantarse con un sistema constructivo rápido y eficiente.

Se optó por una estructura mixta de perfiles laminados en caliente que sirviese de soporte a un sistema ligero de steel framing. El cerramiento se resolvió con paneles sándwich revocados exteriormente, complementados con trasdosados de yeso laminado e aislamiento de lana de roca en su interior. Este conjunto permite lograr un alto rendimiento térmico en un espesor mínimo, maximizando el confort interior y reduciendo costes de ejecución y mantenimiento.

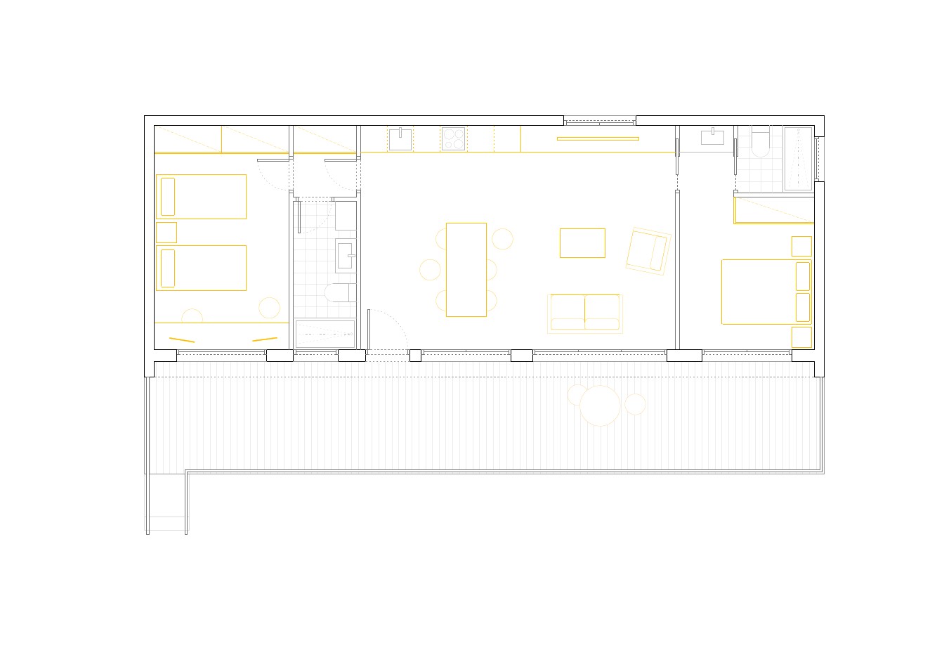
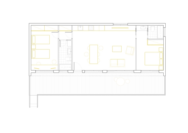
El acceso a la vivienda se produce a través de un sendero que serpentea entre encinas hasta desembocar en una escalera construida con materiales preexistentes de la parcela. Esta conduce a una terraza elevada que antecede al espacio principal: una gran sala de día abierta al paisaje, que articula el programa de dormitorios y baños en sus extremos.

El lenguaje arquitectónico se reduce a lo esencial. Tres materiales definen la envolvente: un revoco claro, un listonado vertical de madera que introduce calidez en la fachada principal y el gris antracita de la estructura y carpinterías, que refuerza el carácter sobrio de la pieza.

En el interior, la atmósfera se construye a partir de la luz natural. Los ventanales convierten cada estancia en un pequeño mirador: la sierra, el cielo, los bosques de encinas. Una neutralidad material y cromática que permite que el protagonismo recaiga por completo en el paisaje exterior.

Las soluciones constructivas incorporan innovación con criterios de sostenibilidad. El sistema steel framing combinado con paneles sándwich y trasdosados aislados logra fachadas de poco espesor pero gran aislamiento, optimizando el comportamiento energético y reduciendo el impacto ambiental. La ligereza de la estructura metálica, además, minimiza la huella sobre el terreno, preservando la topografía rocosa existente.

La casa no busca imponerse, sino enmarcar. Es un lugar para contemplar, respirar y dejarse atravesar por el paisaje. Desde su interior se observa el cielo reflejado en el agua a los pies de las montañas, mientras la secuencia de espacios invita al silencio y a la pausa. Un refugio contemporáneo, mínimo y esencial, que convierte el acto de mirar en el gesto fundamental de habitar.

Proyecto: Casa Mirador / Lookout House
Autores:
Parra Arquitectos

Autores del proyecto: Enrique Parra

Dirección de Obra: Enrique Parra
Directora de Ejecución
Enrique Parra

Coordinador de Seguridad y Salud: Enrique Parra

Colaboradores en fase de Proyecto: Alberto Alonso Oro, Jose Ramón Hernández Correa, Jorge Puente Garrido, Llerena Sánchez

Empresa Constructora: Silverline Steelworks Co SL
Superficie Construida:
90 m2

Cliente: Privado

Fecha: 2024-2025

Estado: Finalizado

Emplazamiento: Valdemorillo (Madrid, España)

Fotografía: Imagen Subliminal

  • Información
  • Autoría

    Clasificación / Tipología

    Edificación

    Ubicación

    Valdemorillo, Madrid | ESPAÑA

    Otra información

    Fecha Inicio: Octubre 2024
    Fecha Terminación: Diciembre 2025
    Superficie construída: 90
    Coste/m2: 1500

    Agentes

    Colaboradores: Alberto Alonso Oro, Jose Ramón Hernández Correa, Jorge Puente Garrido, Llerena Sánchez

    Constructor: Silverline Steelworks Co SL

Fotos Obra Acabada

Fotos Obra

Planimetría

Participaciones en arquia / próxima

No se han encontrado participaciones