arrow-circle-down arrow-circle-left arrow-circle-up arrow-down arrow-left arrow-line-right arrow-right arrow-up ballon close facebook filter glass lock menu phone play point q question search target twitter
X
  • CENTRO SOCIAL DE GOIÁNS


  • CENTRO SOCIAL DE GOIÁNS


  • CENTRO SOCIAL DE GOIÁNS


  • CENTRO SOCIAL DE GOIÁNS


CENTRO SOCIAL DE GOIÁNS

La comunidad como icono en la Galicia rural

Goians es la única parroquia de Carballo sin centro social. Los casi 500 vecinos de esta comunidad, caracterizada por su tradición panadera, deben desplazarse hasta la capital de comarca para disponer de un lugar de encuentro.

El proyecto del centro social en Carballo nace como respuesta a esta realidad territorial marcada por la despoblación y la dispersión. En un contexto donde las viviendas se encuentran aisladas y la vida comunitaria se diluye, el edificio se concibe como un gesto de reunión: un punto de encuentro físico y simbólico para la comunidad.

LA COMUNIDAD COMO ICONO

Situado en un pequeño valle visible desde las tres carreteras próximas, el edificio asume también una condición representativa, convirtiéndose en un referente reconocible para la parroquia. Formalmente, el proyecto representa la suma de distintas casas a dos aguas que, al unirse, conforman un único volumen. Esta agregación no es solo una decisión compositiva, sino una declaración de intenciones: la comunidad entendida como la suma de individualidades. Cada cubierta evoca la escala doméstica, reconocible y cercana, mientras que su unión construye una nueva identidad colectiva.

 ARQUITECTURA POPULAR GALLEGA

La propuesta toma como referencia la arquitectura popular gallega —caracterizada por gruesos muros, pequeñas aberturas y cubiertas pronunciadas— reinterpretando estos elementos desde una lógica contemporánea. Este aspecto exterior cerrado y opaco, sorprende en su interior, donde los patios, el porche cubierto que se extiende del salón de actos y una serie de huecos estratégicos iluminan todas las estancias. 

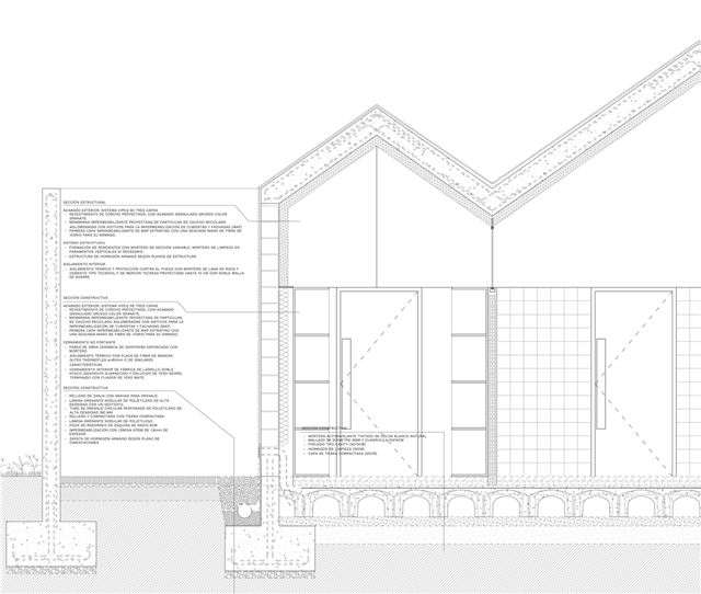
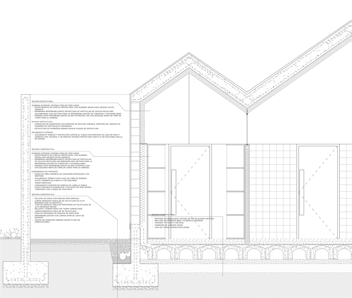
UNA LÁMINA DE HORMIGÓN PLEGADA

Una cubierta flotante de hormigón apoya sobre una planta cuadrada perfecta de 21 x 21 metros que concentra todo el programa. Como si de un folio de papel se tratase, la lámina de hormigón armado de 20 cm se rigidiza al plegarse, y se apoya únicamente en sus dos extremos. 

MÍNIMO MATERIAL, MÁXIMO AHORRO

Con el fin de hacer la obra lo más eficiente y económica, la cubierta lleva el mínimo material: un proyectado impermeabilizante exterior rojo y un proyectado aislante de lana de roca interior. Ambos son, a la vez, acabados. 

PLIEGUES POR PROGRAMA

El edificio alberga un salón de actos, un espacio expositivo y una pequeña cocina, organizados bajo una cubierta plegada de hormigón armado que unifica el conjunto. El pliegue cualifica los distintos usos mediante variaciones de altura y luz, manteniendo la continuidad espacial y la percepción de un único ámbito común.

Funcionalmente, el centro social se plantea como un espacio flexible y abierto, capaz de acoger reuniones vecinales, actividades culturales, talleres y celebraciones. Más que un equipamiento, el proyecto aspira a convertirse en un catalizador de relaciones, un lugar donde la vida compartida vuelva a tener presencia y continuidad. Un punto de encuentro para quienes ven en la cultura, una manera de natural de cuidar el territorio, crear vínculos y en definitiva vivir mejor en el entorno rural.

El edificio no solo ocupa un vacío físico, sino que aspira a activar un vacío social.

 

  • Información
  • Autoría

    Colaboradores

    Álvaro Fernández Carballada
    FCABeatriz Aneiros Filgueira
    FCA

    Clasificación / Tipología

    Edificación

    Ubicación

    Xoane, A Coruña, Galicia | ESPAÑA

    Otra información

    Fecha Inicio: Agosto 2023
    Fecha Terminación: Octubre 2025
    Superficie construída: 342
    Coste/m2: 860€/m2

    Agentes

    Colaboradores: Irene de Santos, Diego Gopar, Mauro Coll, Constanza Andrade, Pablo Navas, Manoli Castro

    Estructuras: Bernabeu ingenieros

    Fotografía: Luis Díaz Díaz + NULA.STUDIO

Contexto

Exteriores

Interiores

Documentación gráfica

Portada

Vistas enmarcadas

Participaciones en arquia / próxima

No se han encontrado participaciones