arrow-circle-down arrow-circle-left arrow-circle-up arrow-down arrow-left arrow-line-right arrow-right arrow-up ballon close facebook filter glass lock menu phone play point q question search target twitter
X
  • SOMA HOUSE


  • SOMA HOUSE


  • SOMA HOUSE


  • SOMA HOUSE


  • SOMA HOUSE


  • SOMA HOUSE


  • SOMA HOUSE


  • SOMA HOUSE


  • SOMA HOUSE


  • SOMA HOUSE


  • SOMA HOUSE


  • SOMA HOUSE


  • SOMA HOUSE


SOMA HOUSE 

La altura como juego. Una vivienda inspirada en el cubo de Soma

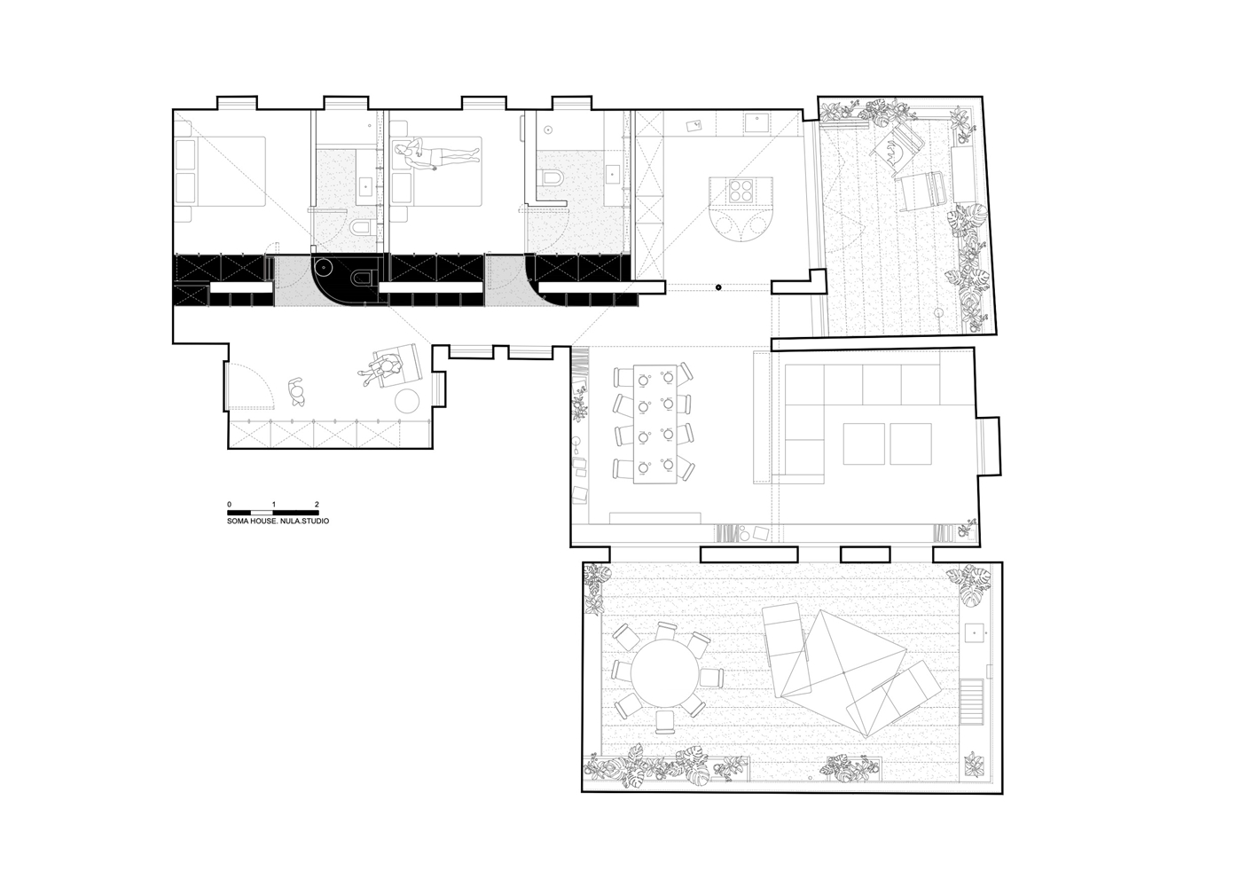
Una antigua oficina, con más de 5 metros de altura, se presenta como una oportunidad para una reforma interior que aproveche al máximo la dimensión vertical como eje principal de la intervención.  Para ello, el proyecto se inspira en el cubo de Soma, un juego geométrico que explora la interacción de piezas tridimensionales para formar una única composición compacta. Los volúmenes, maclados y ensamblados, permiten aprovechar la altura bajo cubierta, interrelacionándose entre sí e invitando a diseñar desde la sección. Cada volumen responde a un programa específico, y su disposición genera dobles alturas que dinamizan el espacio y ofrecen perspectivas únicas, alejándose de las soluciones convencionales en reformas.

La altura, que es la desencadenante del proyecto, es también un juego. Pensado tanto para niños como para adultos, el diseño ofrece una serie de escaleras y niveles que invitan a la exploración y al desafío. Cada cambio de altura es una oportunidad para jugar, interactuar y descubrir nuevas perspectivas. Este juego de volúmenes crea un espacio en constante transformación. Así, cada estancia se conecta visual y funcionalmente con las demás, favoreciendo recorridos que enriquecen la percepción del proyecto.

En el centro de la vivienda, un núcleo funcional de madera organiza y define todo el proyecto. Este elemento, que abraza los muros de carga, contiene todas las instalaciones y articula los espacios circundantes. Su presencia, tanto programática como estética, actúa como piedra angular de este falso cubo, cosiendo los volúmenes entre sí y rigidizando el sistema.

A nivel constructivo, la intervención se caracteriza por un diálogo entre lo existente y lo nuevo en el que el contraste entre materiales y la honestidad constructiva es empleada como elemento expresivo. Las principales intervenciones estructurales se dejan a la vista, revelando el pilar y la viga metálicos que sostienen la cercha de madera existente, así como el apoyo de dicha viga sobre el machón estructural. Los forjados de los altillos se construyen mediante un sistema invertido de vigas y viguetas, donde el canto de las viguetas de madera queda expuesto al colgar de un esquema metálico principal.

Este enfoque se lleva también a los cerramientos, dejando el sistema de ventanas en galandage del salón visto, evitando así trasdosados innecesarios y presumiendo de la sencillez del detalle.

  • Información
  • Autoría

    Clasificación / Tipología

    Reforma

    Ubicación

    Madrid | ESPAÑA

    Otra información

    Fecha Inicio: Setiembre 2023
    Fecha Terminación: Abril 2024
    Superficie construída: 198
    Coste/m2: 2100

    Agentes

    Colaboradores: Irene de Santos, Pablo Navas, Alfonso Gimeno, Constanza Andrade

Interiores

Detalle

Exteriores

Portada

Planos y maqueta

Participaciones en arquia / próxima

No se han encontrado participaciones