arrow-circle-down arrow-circle-left arrow-circle-up arrow-down arrow-left arrow-line-right arrow-right arrow-up ballon close facebook filter glass lock menu phone play point q question search target twitter
X

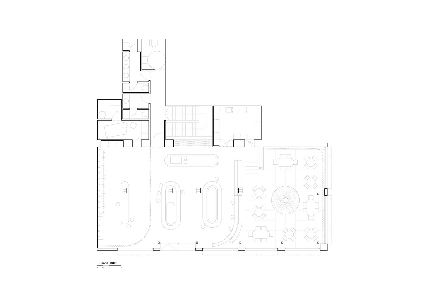
Nofin es una cafetería y una tienda de ropa para ciclistas en el eje marcado por Madrid Río.

Nofin es una cafetería y una tienda de ropa para ciclistas vinculada a la marca Endless. Se ubica en un enclave singular dentro de Madrid: en las inmediaciones de Madrid Río, un espacio público en forma de recorrido, que funciona como una infraestructura cotidiana: una ruta. El local asume, por tanto, una condición de parada, de punto de avituallamiento para una masa constante de ciclistas que recorren el borde del río. Más que un destino, Nofin se entiende como un umbral en mitad del movimiento.

La propuesta conceptual toma esa experiencia del ciclismo en ruta como punto de partida, pero la desplaza hacia un registro más abstracto: no se trata de ilustrar la bicicleta ni de construir una escenografía evidente, sino de capturar el clima material y espacial de la ruta: sus superficies, sus señales, sus elementos de protección y pausa. En contraposición, una parte del espacio asume la materialidad y el ambiente de un espacio doméstico; que prácticamente pide descalzarse, tumbarse en el suelo. El proyecto se construye, así, como una arquitectura de dos estados: exterior e interior, fricción y calma, asfalto y tatami. Dos mundos superpuestos que no buscan mezclarse por completo, sino coexistir como capas que se rozan.

El espacio principal se plantea como un fragmento de infraestructura trasladado al interior. El pavimento remite al asfalto: una superficie negra, continua, dura, que acepta el desgaste y la marca como parte de su condición. La señalética no aparece como gráfica corporativa pulcra, sino como rastro: pintadas de ánimo, mensajes breves y utilitarios, esa escritura improvisada que aparece en los grandes recorridos; un lenguaje de apoyo y orientación más que de representación. En esta zona, el mobiliario referencia los merenderos de estaciones de servicio: mesas robustas, directas, sin gesto doméstico, pensadas para parar sin instalarse. A su alrededor emergen elementos de borde y protección, quitamiedos, vallas y barandillas, que no se entienden como decoración, sino como dispositivos que ordenan el movimiento y acogen al visitante.

Frente a ese registro infraestructural, el espacio más doméstico opera como un interior de otra naturaleza: un interior pensado para el cuerpo, para el contacto directo con la piel. Los materiales se desplazan hacia lo cálido y lo táctil: madera, mimbre, textiles; superficies que absorben la luz en lugar de reflejarla. Aparecen referencias no como cita literal, sino como lógica de uso: el tatami como módulo y medida, la lámpara como control de atmósfera, el mobiliario como elemento bajo y próximo, más cercano a la postura que a la mirada.

El proyecto se organiza, por tanto, a partir de esa fricción controlada. No es una narrativa lineal, sino un montaje: el visitante atraviesa una primera capa que conserva algo de la calle y del recorrido, y se adentra progresivamente en otra que condensa calma y cuidado. La transición entre ambos mundos no se resuelve con un cambio temático, sino con una modificación gradual de densidad, de temperatura material y de acústica: de lo duro a lo blando, de lo expuesto a lo recogido.

En paralelo, la intervención asume una condición pragmática: el local arrastra “accidentes” propios del edificio: irregularidades, encuentros forzados, huellas de instalaciones previas. La estrategia material se plantea entonces como un sistema de unificación: un material (o una familia coherente de acabados) capaz de absorber esos incidentes, ordenarlos sin ocultarlos del todo y construir continuidad donde hoy hay fragmento. Más que “terminar” el espacio con capas innecesarias, se trata de fijar una lógica clara: una base continua que acepte la imperfección como dato, y sobre ella, una serie de elementos precisos (bordes, piezas de mobiliario, luminarias).

  • Información
  • Autoría

    Clasificación / Tipología

    Reforma

    Ubicación

    Puente de Segovia, 3 | Madrid | ESPAÑA

    Otra información

    Fecha Inicio: Setiembre 2024
    Fecha Terminación: Febrero 2025
    Superficie construída: 400
    Coste/m2: 1500

    Agentes

    Colaboradores: Ramón Martínez
    Elena Fuertes
    Jesús Meseguer
    Natalia Molina
    Amanda Bouzada
    Marina van der Linden
    Guillermo Hernández
    Ricardo Morcillo

    Constructor: Dasepa

    Fotografía: Maru Serrano

    Imagen Gráfica: Brigade 86

    Project Manager: Hugo Huerga
    Diego Andrés López
    Ansón y Bonet

IMÁGENES

PLANOS

Participaciones en arquia / próxima

No se han encontrado participaciones