arrow-circle-down arrow-circle-left arrow-circle-up arrow-down arrow-left arrow-line-right arrow-right arrow-up ballon close facebook filter glass lock menu phone play point q question search target twitter
X
  • Viviendas en c/ Pico Cejo 26.

    MADRID
  • Viviendas en c/ Pico Cejo 26.

    MADRID
  • Viviendas en c/ Pico Cejo 26.

    MADRID
  • Viviendas en c/ Pico Cejo 26.

    MADRID

ESPACIOS INTERMEDIOS

¿Hacia donde nos dirigimos como grupo social? que necesita una sociedad como la actual....?

Diversidad social: El núcleo familiar tradicional está dando paso a distintas agrupaciones de gente que conviven entre sí... cada vez son más las personas que eligen vivir solas, o en pareja pero sin hijos.

También es cada vez mayor la sensación de aislamiento y soledad en las ciudades, puesto que las nuevas tecnologías han conseguido que necesitemos menos los unos a los otros...

Tratando de traducir espacialmente este panorama social, llegamos a la conclusión de que las viviendas cada vez necesitan menos espacio de uso permanente, pero en cambio surge la necesidad de espacios en los que volver a plantear ciertas actividades como comunes, potenciando así la relación interpersonal....

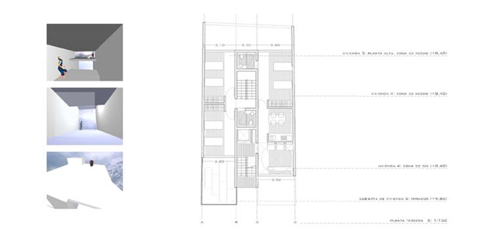
El esquema general de las viviendas se organiza en torno a espacios intermedios que pretenden albergar usos comunes y de relación, tanto con el resto de los vecinos como con el resto de la ciudad...

Frente a la ciudad masiva, se plantea una manera de vida más personalizada y atenta a las necesidades de los ciudadanos, planteando viviendas distintas entre sí, así como espacios singulares dentro de ellas, matizando los lugares con distintas alturas que los singularicen….

Apostamos por un modelo de ciudad en que se rescatan los valores individuales, adaptando la ciudad a la escala humana, y dotándola del carácter propio de sus habitantes, de aquellos que la construyen...

  • Información
  • Autoría

    Clasificación / Tipología

    Edificación

    Ubicación

    Pico Cejo 26, Madrid Madrid
    MADRID | ESPAÑA

    Otra información

    Fecha Terminación: Febrero 2005

Galería realización

0 comentarios


No hay comentarios ni valoraciones para este producto.
¡Sé el primero en comentar y valorar!