arrow-circle-down arrow-circle-left arrow-circle-up arrow-down arrow-left arrow-line-right arrow-right arrow-up ballon close facebook filter glass lock menu phone play point q question search target twitter
X
  • Casas Costacabana

    ALMERIA
  • Casas Costacabana

    ALMERIA
  • Casas Costacabana

    ALMERIA
  • Casas Costacabana

    ALMERIA
  • Casas Costacabana

    ALMERIA
  • Casas Costacabana

    ALMERIA
  • Casas Costacabana

    ALMERIA
  • Casas Costacabana

    ALMERIA
  • Casas Costacabana

    ALMERIA

Proyecto de dos viviendas unifamiliares en Costacabana, Almería

Al encontrarnos en el límite del barrio, el entorno inmediato no invita a ser contemplado. Por ello, se propone un proyecto de carácter íntimo, donde las viviendas se miran a sí mismas y la vida familiar se organiza en torno a los patios interiores y a la propia arquitectura. Estos espacios interiores se convierten en el verdadero corazón de las casas, lugares donde la luz, el aire y la vegetación generan un ambiente doméstico sereno y protegido del exterior.

Al ascender hasta la planta cubierta o solárium, la vivienda se abre completamente. Desde allí se disfruta de un amplio espacio exterior con vistas al Cabo de Gata, ofreciendo un contraste intencionado entre la introversión del nivel inferior y la apertura luminosa de la cubierta. Este espacio se concibe como un mirador privado hacia el paisaje, un lugar de descanso y contemplación donde el mar y el cielo completan la experiencia doméstica.

Las Casas Costacabana se organizan, por tanto, alrededor de patios interiores. Los usos más públicos —salones, cocinas y comedores— se disponen en el perímetro, actuando como una envolvente que protege la vida íntima de los patios del contacto directo con la calle. Estas franjas habitables funcionan como filtros: permiten una relación controlada con el entorno y, al mismo tiempo, dirigen la mirada y la vida hacia el interior. La arquitectura se convierte así en una herramienta de protección y de recogimiento, un refugio frente al contexto urbano inmediato.

El concepto de “búnker” se manifiesta también en el tratamiento exterior del conjunto. Las falsas fachadas de hasta nueve metros de altura aportan una fuerte unidad visual y volumétrica, reforzando la idea de solidez y continuidad. Los huecos, pocos, pero precisos, se abren estratégicamente para proteger del intenso sol de Costacabana, tamizando la luz y enmarcando vistas concretas del entorno.

El acabado blanco y el revestimiento continuo, casi escultórico, otorgan al conjunto una textura homogénea y serena. Esta materialidad, junto con la volumetría rotunda, remite a las viviendas mediterráneas tradicionales de la zona, reinterpretadas aquí con un lenguaje contemporáneo. El resultado es una arquitectura que combina el espíritu protector del refugio con la luminosidad y pureza propias del paisaje almeriense.

  • Información
  • Autoría

    Clasificación / Tipología

    Edificación
    Interiorismo

    Ubicación

    Calle Rhin, 41
    04120 Costacabana | Almería
    ALMERIA | ESPAÑA

    Otra información

    Fecha Inicio: Julio 2018
    Fecha Terminación: Febrero 2020
    Superficie construída: 354 m2
    Coste/m2: 845 €/m2

    Agentes

    Arquitectos técnicos: Jose Antonio Guerrero

    Contratista: Inarco. Ingeniería, Arquitectura & Construcción S.L.

    Director de obra: Jose Moreno Ferre y Javier Peña Alcalde

    Interiorista: Jose Moreno Ferre

    Promotor: Moreno Huertas S.A.

  • Premios y distinciones
  • FINALISTA PREMIO ARCO 2019-2022 Colegio de Arquitectos de Almería

    Publicación en Arquitectura Viva

    Publicación en TC Cuadernos

    Publicación impresa CONArquitectura

    Publicación impresa en ON Diseño

Arquitectura Viva

TC Cuadernos

ConArquitectura

Videos de obra

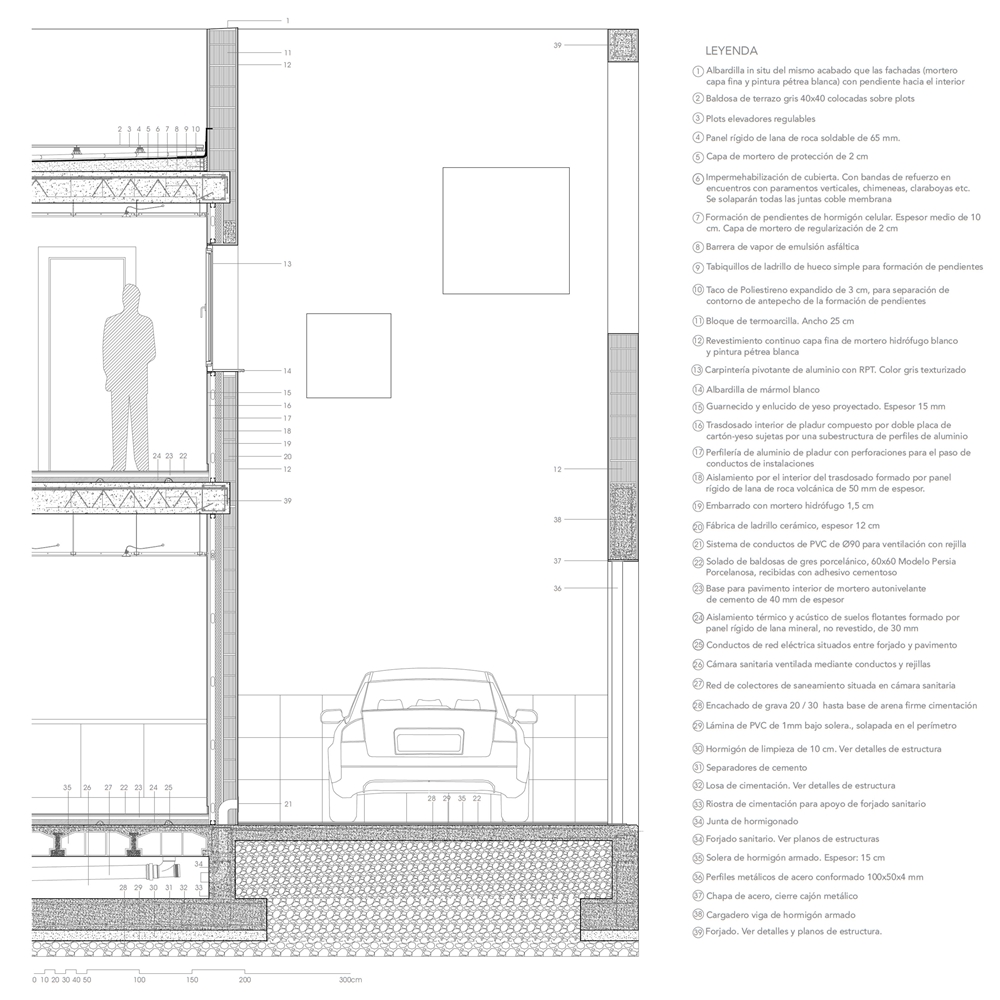
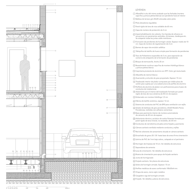
Planimetría

Participaciones en arquia / próxima

IX Edición 2022-2023
VIII Edición 2020-2021